2018年一级建造师考试《建筑工程管理与实务》真题及参考答案
一、单项选择题(共 20 题,每题 1 分,每题的备选项中,只有一个最符合题意。)
1.住宅建筑室内疏散楼梯的最小净宽度为( )。
A.1.0m
B.1.1m
C.1.2m
D.1.3m
2.直接接触土体浇筑的普通钢筋混凝土构件,其混凝土保护层厚度不应小于( )。
A.50mm
B.60mm
C.70mm
D.80mm
3.装饰施工中,需在承重结构上开洞凿孔,应经相关单位书面许可,其单位是( )。
A.原建设单位
B.原设计单位
C.原监理单位
D.原施工单位
4.关于粉煤灰水泥主要特征的说法,正确的是( )。
A.水化热较小
B.抗冻性好
C.干缩性较大
D.早期强度高
5.HRB400E 钢筋应满足最大力下总伸长不小于( )。
A.6%
B.7%
C.8%
D.9%
6.用于承重的双排孔轻集料混凝土砌块砌体的孔洞率不应大于( )。
A.25%
B.30%
C.35%
D.40%
7.木材的变形在各个方向不同,下列表述中正确的是( )。
A.顺纹方向最小,径向较大,弦向最大
B.顺纹方向最小,弦向较大,径向最大
C.径向最小,顺纹方向较大,弦向最大
D.径向最小,弦向较大,顺纹方向最大
8.为设计提供依据的试验桩检测,主要确定( )。
A.单桩承载力
B.桩身混凝土强度
C.桩身完整性
D.单桩极限承载力
9.关于大体积混凝土浇筑说法,正确的是( )。
A.宜沿短边方向进行
B.可多点同时浇筑
C.宜从高处开始
D.应采用平板振捣器振捣
10.关于预应力工程施工的说法,正确的是( )。
A.都使用台座
B.都预留预应力孔道
C.都采用放张工艺
D.都使用张拉设备
11.关于砌体结构施工的说法,正确的是( )。
A.在干热条件砌筑时,应选用较小稠度的砂浆
B.机械搅拌砂浆时,搅拌时间自开始投料时算起
C.砖柱不得采用包心砌法砌筑
D.先砌砖墙,后绑构造柱钢筋,最后浇筑混凝土
12.下列属于产生焊缝固体夹渣缺陷主要原因的是( )。
A.焊缝布置不当
B.焊前未预热
C.焊接电流大小
D.焊条未烘烤
13.预制混凝土板水平运输时,叠放不宜超过( )。
A.3 层
B.4 层
C.5 层
D.6 层
14.地下室外墙卷材防水层施工做法中,正确的是( )。
A.卷材防水层铺设在外墙的迎水面上
B.卷材防水层铺设在外墙的背水面上
C.外墙外侧卷材采用空铺法
D.铺贴双层卷材时,两层卷材互相垂直
15.关于屋面涂膜防水层施工工艺的说法,正确的是( )。
A.水乳型防水涂料宜选用刮涂施工
B.反应固化型防水涂料选用喷涂施工
C.聚合物水泥防水涂料宜选用滚涂施工
D.热熔型防水涂料宜选用喷涂施工
16.下列板材内隔墙施工工艺顺序中,正确的是( )。
A.基层处理→放线→安装卡件→安装隔墙板→板缝处理
B.放线→基层处理→安装卡件→安装隔墙板→板缝处理
C.基层处理→放线→安装隔墙板→安装卡件→板缝处理
D.放线→基层处理→安装隔墙板→安装卡件→板缝处理
17.关于施工现场临时用电管理的说法,正确的是( )。
A.现场电工必须经相关部门考核合格后,持证上岗
B.用电设备拆除时,可由安全员完成
C.用电设备总容量在 50KW 及以上的,应制定用电防火措施
D.装饰装修阶段用电参照用电组织设计执行
18.根据《建筑安装工程费用项目组成》(建标[2013]44 号)规定,以下费用属于规费的是( )。
A.印花税
B.工程排污费
C.工会经费
D.检验试验费
19.施工组织总设计应由( )技术负责人审批。
A.建设单位
B.监理单位
C.总承包单位
D.项目经理部
20.建筑节能工程应按照( )进行验收。
A.单位工程
B.分部工程
C.子分部工程
D.分项工程
二、多项选择题(共 10 题,每题 2 分。每题的备选项中,有 2 个或 2 个以上符合题意,至少有 1 个错项。错选,本题不得分;少选,所选的每个选项得 0.5 分。)
21.下列空间可不计入建筑层数的有( )。
A.室内顶板面高出室外设计地面 1.2m 的半地下室
B.设在建筑底部室内高度 2.0m 的自行车库
C.设在建筑底部室内高度 2.5m 的敞开空间
D.建筑屋顶突出的局部设备用房
E.建筑屋顶出屋面的楼梯间
22.楼地面应满足的功能有( )。
A.平整
B.耐磨
C.防滑
D.易于清洁
E.经济
23.下列防火门构造的基本要求中,正确的有( )。
A.甲级防火门耐火极限应为 1.0h
B.向内开启
C.关闭后应能从内外两侧手动开启
D.具有自行关闭功能
E.开启后,门扇不应跨越变形缝
24.涂饰施工中必须使用耐水腻子的部位有( )。
A.卫生间
B.厨房
C.卧室
D.客厅
E.地下室
25.关于剪力墙结构优点的说法,正确的是有( )。
A.结构自重大
B.水平荷载作用下侧移小
C.侧向刚度大
D.间距小
E.平面布置灵活
26.下列属于钢材工艺性能的有( )。
A.冲击性能
B.弯曲性能
C.疲劳性能
D.焊接性能
E.拉伸性能
27.影响混凝土拌合物和易性的主要因素包括( )。
A.强度
B.组成材料的性质
C.砂率
D.单位体积用水量
E.时间和温度
28.民用建筑上部结构沉降观测点宜布置在( )。
A.建筑四角
B.核心筒四角
C.大转角处
D.基础梁上
E.高低层交接处
29.幕墙工程中,后置埋件的验收要点有( )。
A.锚板和锚栓的材质
B.锚板的位移
C.后置埋件的规格
D.锚栓埋置深度
E.化学锚栓的锚固胶
30.下列属于建筑信息模型(BIM)元素信息中几何信息的有( )。
A.材料和材质
B.尺寸
C.规格型号
D.性能技术参数
E.空间拓扑关系
三、案例分析题(共 5 题,(一)(二)(三)题各 20 分,(四)(五)题各 30 分)
案例(一)
【背景资料】
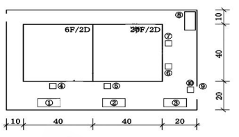
一建筑施工场地,东西长 110m,南北宽 70m。拟建建筑物首层平面 80m×40m,地下 2 层,地上 6/20 层,檐口高 26/68m。建筑面积约 48000m
2。施工场地部分临时设施平面布置示意图见图 1。图中布置施工临时设施有:现场办公室,木工加工及堆场,钢筋加工及堆场,油漆库房,塔吊,施工电梯,物料提升机,混凝
土地泵,大门及围墙,车辆冲洗池(图中未显示的设施均视为符合要求)。

图 1:部分临时设施平面布置示意图
【问题】
1.写出图 1 中临时设施编号所处位置最宜布置的临时设施名称(如⑨大门与围墙)
2.简单说明布置理由
3.施工现场安全文明施工宣传方式有哪些?
案例(二)
【背景资料】
某高校图书馆工程,地下二层,地上五层,建筑面积约 35000m2,现浇钢筋混凝土框架结构,部分屋面为正向抽空四角锥网架结构。施工单位与建设单位签订了施工总承包合同,合同工期为 21 个月。
在工程开工前,施工单位按照收集编制依据、划分施工过程(段)、计算劳动量、优化并绘制正式施工进度计划图等步骤编制了施工进度计划,并通过了总监理工程师的审查与确认,项目部在开工后进行了进度检查,发现施工进度拖延,其部分检查结果如图 2 所示。
项目部为优化工期,通过改进装饰装修施工工艺,使其作业时间缩短为 4 个月,据此调整的进度计划通过了总监理工程师的确认。

项目部计划采用高空散装法施工屋面网架,监理工程师审查时认为高空散装法施工高空作业多、安全隐患大,建议修改为采用分条安装法施工。管道安装按照计划进度完成后,因甲供电缆电线未按计划进场,导致电缆电线安装工程最早开始时间推迟了 1 个月,施工单位按规定提出索赔工期 1 个月。
【问题】
1.单位工程进度计划编制步骤还应包括哪些内容?
2.图 2 中,工程总工期是多少?管道安装的总时差和自由时差分别是多少?除工期优化外,进度网络计划的优化目标还有哪些?
3.监理工程师的建议是否合理?网架安装方法还有哪些?网架高空散装法施工的特点还有哪些?
4.施工单位提出的工期索赔是否成立?并说明理由。
案例(三)
【背景资料】
某新建高层住宅工程建筑面积 16000m2。地下一层,地上十二层,二层以下为现浇钢筋混凝土结构,二层以上为装配式混凝土结构,预制墙板钢筋采用套筒灌浆连接施工工艺。
施工总承包合同签订后,施工单位项目经理遵循项目质量管理程序,按照质量管理 PDCA 循环工作方法持续改进质量工作。
监理工程师在检查土方回填施工时发现:回填土料混有建筑垃圾;土料铺填厚度大于 400mm;采用振动压实机压实 2 遍成活;每天将回填 2-3 层的环刀法取的土样统一送检测单位检测压实系数。对此提出整改要求。
“后浇带施工专项方案”中确定:模板独立支设;剔除模板用钢丝网;因设计无要求,基础底板后浇带 10d后封闭等。
监理工程师在检查第 4 层外墙板安装质量时发现:钢筋套筒连接灌浆满足规范要求;留置了 3 组边长为70.7mm 的立方体灌浆料标准养护试件;留置了 1 组边长 70.7mm 的立方体坐浆料标准养护试件;施工单位选取第 4 层外墙板竖缝两侧 11mm 的部位在现场进淋水试验,对此要求整改。
【问题】
1.写出 PDCA 工作方法内容;其中“A”的工作内容有哪些?
2.指出土方回填施工中的不妥之处?并写出正确做法。
3.指出“后浇带专项方案”中的不妥之处?写出后浇带混凝土施工的主要技术措施。
4.指出第 4 层外墙板施工中的不妥之处?并写出正确做法。装配式混凝土构件钢筋套筒连接灌浆质量要求有哪些?
案例(四)
【背景资料】
某开发商拟建一城市综合体项目,预计总投资十五亿元。发包方式采用施工总承包,施工单位承担部分垫资,按月度实际完成工作量的 75%支付工程款,工程质量为合格,保修金为 3%,合同总工期为 32 个月。
某总包单位对该开发商社会信誉,偿债备付率、利息备付率等偿债能力及其他情况进行了尽职调查。中标后,双方依据《建设工程工程量清单计价规范》GB50500-2013,对工程量清单编制方法等强制性规定进行了确认,对工程造价进行了全面审核。最终确定有关费用如下:分部分项工程费 82000.00 万元,措施费20500.00 万元,其他项目费 12800.00 万元,暂列金额 8200.00 万元,规费 2470.00 万元,税金 3750.00万元。双方依据《建设工程施工合同(示范文本》GF-2017-0201 签订了工程施工总承包合同。
项目部对基坑围护提出了三个方案:A 方案成本为 8750.00 万元,功能系数为 0.33;B 方案成本为 8640.00万元,功能系数为 0.35;C 方案成本为 8525.00 万元,功能系数为 0.32。最终运用价值工程方法确定了实施方案。
竣工结算时,总包单位提出索赔事项如下:
(1)特大暴雨造成停工 7 天,开发商要求总包单位安排 20 人留守现场照管工地,发生费用 5.60 万元。
(2)本工程设计采用了某种新材料,总包单位为此支付给检测单位检验试验费 4.60 万元,要求开发商承担。
(3)工程主体完工 3 个月后总包单位为配合开发商自行发包的燃气等专业工程施工,脚手架留置比计划延长 2 个月拆除。为此要求开发商支付 2 个月脚手架租赁费 68.00 万元。
(4)总包单位要求开发商按照银行同期同类贷款利率,支付垫资利息 1142.00 万元。
【问题】
1.偿债能力评价还包括哪些指标?
2.对总包合同实施管理的原则有哪些?
3.计算本工程签约合同价(单位万元,保留 2 位小数)。双方在工程量清单计价管理中应遵守的强制性规定还有哪些?
4.列式计算三个基坑围护方案的成本系数、价值系数(保留小数点后 3 位),并确定选择哪个方案。
5.总包单位提出的索赔是否成立?并说明理由。
案例(五)
【背景资料】
一新建工程,地下二层,地上二十层,高度 70m,建筑面积 40000m2,标准层平面为 40m×40m。项目部根据施工条件和需求,按照施工机械设备选择的经济性等原则,采用单位工程量成本比较法选择确定了塔吊型号。施工总承包单位根据项目部制定的安全技术措施、安全评价等安全管理内容提取了项目安全生产费用。
施工中,项目部技术负责人组织编写了项目检测试验计划,内容包括试验项目名称、计划试验时间等,报项目经理审批同意后实施。
项目部在“X 工程施工组织设计”中制定了临边作业、攀登与悬空作业等高处作业项目安全技术措施。在“绿色施工专项方案”的节能与能源利用中,分别设定了生产等用电项的控制指标,规定了包括分区计量等定期管理要求,制定了指标控制预防与纠正措施。
在一次塔吊起吊荷载达到其额定起重量 95%的起吊作业中,安全人员让操作人员先将重物吊起离地面 15cm,然后对重物的平稳性,设备和绑扎等各项内容进行了检查,确认安全后同意其继续起吊作业。
“在建工程施工防火技术方案”中,对已完成结构施工楼层的消防设施平面布置设计见图 5。图中立管设计参数为:消防用水量 15L/s,水流速ⅰ=1.5m/s;消防箱包括消防水枪、水带与软管。监理工程师按照《建筑工程施工现场消防安全技术规范》GB50720-2011)提出了整改要求。

图 5:标准层临时消防设施布置示意图(未显示部分视为符合要求)
【问题】
1.施工机械设备选择的原则和方法分别还有哪些?当塔吊起重荷载达到额定起重量 90%以上对起重设备和重物的检查项目有哪些?
2.安全生产费用还应包括哪些内容?需要在施工组织设计中制定安全技术措施的高处作业项还有哪些?
3.指出项目检测试验计划管理中的不妥之处,并说明理由。施工检测试验计划内容还有哪些?
4.节能与能源利用管理中,应分别对哪些用电项设定控制指标?对控制指标定期管理的内容有哪些?
5.指出图 5 中的不妥之处,并说明理由。
2018 年一级建造《建筑工程管理与实务》参考答案
一、单项选择题(共 20 题,每题 1 分,每题的备选项中,只有一个最符合题意。)
1.B
【解析】室内疏散楼梯的最小净宽度表 1A411021-1

2.C
【解析】直接接触土体浇筑的构件,其混凝土保护层厚度不应小于 70mm;
3.B
【解析】在装修施工中,不允许在原有承重结构构件上开洞凿孔,降低结构构件的承载能力。如果实在需要,应经原设计单位的书面有效文件许可,方可施工。
4.A
【解析】
常用水泥的主要特性表 1A414011-3

5.D
【解析】(1)钢筋实测抗拉强度与实测屈服强度之比不小于 1.25;
(2)钢筋实测屈服强度与表 1A412012-1 规定的屈服强度标准值之比不大于 1.30(超屈比);
(3)钢筋的最大力总伸长率不小于 9%。
6.C——偏僻
【解析】注:1.用于承重的双排孔或多排孔轻集料混凝土砌块砌体的孔洞率不应大于 35%;
7.A
【解析】由于木材构造的不均匀性,木材的变形在各个方向上也不同;顺纹方向最小,径向较大,弦向最大(小顺子、大弦子)。因此,湿材干燥后,其截面尺寸和形状会发生明显的变化。
8.D
【解析】可分为施工前,为设计提供依据的试验桩检测,主要确定单桩极限承载力;桩基施工后,为验收提供依据的工程桩检测,主要进行单桩承载力和桩身完整性检测。
9.B
【解析】混凝土浇筑宜从低处开始,沿长边方向自一端向另一端进行。当混凝土供应量有保证时,亦可多点同时浇筑。凝土应采取振捣棒振捣。
10.D——综合
【解析】通过 P113-114 的(四)(五)可判断出 A、C 属于先张法预应力施工,后张法预应力施工中无粘结预应力筋不需要预留孔道和灌浆。而两种方法张拉过程都需要使用张拉设备。
11.C——虽然 C 选项不易,但用排除法不难
【解析】A 当砌筑材料为粗糙多孔且吸水较大的块料或在干热条件下砌筑时,应选用较大稠度值的砂浆;反之,应选用较小稠度值的砂浆。A 错误
B 砂浆应采用机械搅拌,搅拌时间自投料完算起。B 错误
C 砖柱应选用整砖砌筑。砖柱断面宜为方形或矩形。C 正确
D 正确顺序为:先绑构造柱钢筋,后砌砖墙,最后浇筑混凝土。D 错误
12.C——有难度
【解析】产生夹渣的主要原因是焊接材料质量不好、焊接电流太小、焊接速度太快、熔渣密度太大、阻碍熔渣上浮、多层焊时熔渣未清除干净等。所以本题选 C。
13.D
【解析】水平运输时,预制梁、柱构件叠放不易超过 3 层,板类构件叠放不易超过 6 层。
14.A
【解析】卷材防水层应铺设在混凝土结构的迎水面上,所以 A 正确,B 错误。结构底板垫层混凝土部位的卷材可采用空铺法或点粘法施工,侧墙采用外防外贴法的卷材及顶板部位的卷材应采用满粘法施工。所以C 错误。铺贴双层卷材时,上下两层和相邻两幅卷材的接缝应错开 1/3~1/2 幅宽,且两层卷材不得相互垂直铺贴。所以 D 错误。
15.B——难题
【解析】涂膜防水层施工工艺应符合下列规定:
1)水乳型及溶剂型防水涂料宜选用滚涂或喷涂施工;(A 错误)
2)反应固化型防水涂料宜选用刮涂或喷涂施工;(B 正确误)
3)热熔型防水涂料宜选用刮涂施工;(D 错误)
4)聚合物水泥防水涂料宜选用刮涂法施工;(C 错误)
5)所有防水涂料用于细部构造时,宜选用刷涂或喷涂施工。
16.A
【解析】板材隔墙施工工艺流程:基层处理→放线→配板、修补→支设临时方木→配置胶粘剂→安装 U 形卡件或 L 形卡件(有抗震设计要求时)→安装隔墙板→安装门窗框→设备、电气管线安装→板缝处理。所以答案为 A
17.A
【解析】施工现场操作电工必须经过国家现行标准考核合格后,持证上岗工作。A 正确
安装、巡检、维修或拆除临时用电设备和线路,必须由电工完成,并应有人监护。B 错误
施工现场临时用电设备在 5 台及以上或设备总容量在 50kW 及以上的,应编制用电组织设计。C 错误。
装饰装修工程或其他特殊施工阶段,应补充编制单项施工用电方案。D 错误
18.B
【解析】规费:是指按国家法律、法规规定,由省级政府和省级有关权力部门规定必须缴纳或计取的费用。
内容包括:社会保障费(含养老保险费、失业保险费、医疗保险费)、住房公积金、工程排污费、工伤保险(五险一金加污伤)。其他应列而未列入的规费,应根据省级政府或者省级有关权力部门的规定列项。
19.C
【解析】施工组织总设计应由总承包单位技术负责人审批;单位工程施工组织设计应由施工单位技术负责人或技术负责人授权的技术人员审批;施工方案应由项目技术负责人审批;重点、难点分部(分项)工程和专项工程施工方案应由施工单位技术部门组织相关专家评审,施工单位技术负责人批准。由专业承包单位施工的分部(分项)工程或专项工程的施工方案,应由专业承包单位技术负责人或其授权的技术人员审批;有总承包单位时,应由总承包单位项目技术负责人核准备案。
20.D
【解析】建筑节能按照分项工程进行验收;分项工程量较大时,可将其划分为若干个检验批进行验收;特殊节能分项工程和检验批的验收应单独填写验收记录,节能验收资料应单独组卷。
二、多项选择题(共 10 题,每题 2 分。每题的备选项中,有 2 个或 2 个以上符合题意,至少有 1 个错项。错选,本题不得分;少选,所选的每个选项得 0.5 分。)
21.ABDE
【解析】建筑层数应按建筑的自然层数计算,下列空间可不计入建筑层数:(1)室内顶板面高出室外设计地面的高度不大于 1.5m 的地下或半地下室;(2)设置在建筑底部且室内高度不大于 2.2m 的自行车库、储藏室、敞开空间;(3)建筑屋顶上突出的局部设备用房、出屋面的楼梯间等。
22.ABCD
【解析】除有特殊使用要求外,楼地面应满足平整、耐磨、不起尘、防滑、易于清洁等要求。
23.CDE
【解析】防火门、防火窗应划分为甲、乙、丙三级,其耐火极限:甲级应为 1.5h;乙级应为 1.0h;丙级应为 0.5h。A 错误。防火门应为向疏散方向开启的平开门,并在关闭后应能从其内外两侧手动开启。B 错误,C 正确。用于疏散的走道、楼梯间和前室的防火门,应具有自行关闭的功能;常开的防火门,当发生火灾时,应具有自行关闭和信号反馈的功能。D 正确。设在变形缝处附近的防火门,应设在楼层数较多的一侧,且门开启后门扇不应跨越变形缝。E 正确。
24.ABE
【解析】厨房、卫生间、地下室墙面必须使用耐水腻子。
25.BC
【解析】剪力墙结构的优点是侧向刚度大,水平荷载作用下侧移小;缺点是剪力墙的间距小,结构建筑平面布置不灵活,不适用于大空间的公共建筑,另外结构自重也较大。
26.BD
【解析】钢材的主要性能包括力学性能和工艺性能。其中力学性能是钢材最重要的使用性能,包括拉伸性能、冲击性能、疲劳性能等。工艺性能表示钢材在各种加工过程中的行为,包括弯曲性能和焊接性能等。
27.BCDE
【解析】影响混凝土拌合物和易性的主要因素包括单位体积用水量、砂率、组成材料的性质、时间和温度等。单位体积用水量决定水泥浆的数量和稠度,它是影响混凝土和易性的最主要因素。砂率是指混凝土中砂的质量占砂、石总质量的百分率。组成材料的性质包括水泥的需水量和泌水性、骨料的特性、外加剂和掺合料的特性等几方面。
28.ABC
【解析】民用建筑基础及上部结构沉降观测点布设位置有:1)建筑的四角、核心筒四角、大转角处及沿外墙每 10~20m 处或每隔 2~3 根柱基上;2)高低层建筑、新旧建筑和纵横墙等交接处的两侧;3)对于宽度大于或等于 15m 的建筑,应在承重内隔墙中部设内墙点,并在室内地面中心及四周设地面点;4)框架结构及钢结构建筑的每个和部分柱基上或沿纵横轴线上;5)筏形基础、箱式基础底板或接近基础的结构部分之四角处及其中部位置;6)超高层建筑和大型网架结构的每个大型结构柱监测点不宜少于 2 个,且对称布置。
29.ACDE——偏僻
【解析】对后置埋件的验收要点:(1)后置埋件的品种、规格是否符合设计要求;(2)锚板和锚栓的材质、锚栓埋置深度及拉拔力等是否符合设计要求;(3)化学锚栓的锚固胶是否符合设计和规范要求。
30.BE——虽然偏僻,却是常识,控制贪欲,得分不难
【解析】模型元素信息包括的内容有:尺寸、定位、空间拓扑关系等几何信息;名称、规格型号、材料和材质、生产厂商、功能与性能技术参数,以及系统类型、施工段、施工方式、工程逻辑关系等非几何信息。
三、案例分析题(共 5 题,(一)(二)(三)题各 20 分,(四)(五)题各 30 分)
案例(一)
1.(每项 1 分,满分 9 分)
①木工加工及堆场;②钢筋加工及堆场;③现场办公室;④物料提升机;⑤塔吊;⑥混凝土地泵;⑦施工电梯;⑧油漆库房;⑨大门及围墙;⑩车辆冲洗池。
2.(每项 1 分,满分 9 分)
布置理由:
①木工加工及堆场:使材料和构件的运输量最小,垂直运输设备发挥较大的作用,工作有关联的加工厂适当集中。
②钢筋加工及堆场:使材料和构件的运输量最小,垂直运输设备发挥较大的作用,工作有关联的加工厂适当集中。
③现场办公室:办公用房宜设在工地入口处。
④物料提升机:用于 6 层楼层垂直运输。
⑤塔吊:中心位置靠近高层建筑,考虑其覆盖范围。
⑥混凝土地泵:考虑泵管的输送距离宜靠近高层建筑,混凝土罐车行走停靠方便,放在门口边便于卸料。
⑦施工电梯:布置在拟建高层建筑一侧,兼顾最远离塔吊位置的物料垂直运输。
⑧油漆库房:远离现场单独设置。
⑨大门及围墙:应考虑周边路网情况、转弯半径、坡度限制。
⑩车辆冲洗池:设置在车辆出入口处。
3.(满分 2 分)
施工现场应设宣传栏、报刊栏,悬挂安全标语和安全警示标志牌,加强安全文明施工宣传。
案例(二)
1.(每项 1 分,满分 4 分)
单位工程进度计划的编制步骤还有:(1)确定施工顺序;(2)计算劳动量或机械台班需用量;(3)确定持续时间;(4)绘制可行的施工进度计划图。
2.(满分 5 分)
(1)图 2 工程总工期:22 个月。(1 分)
(2)自由时差:0 个月;总时差:1 个月。(2 分)
(3)还有:资源优化、费用优化。(2 分)
3.(满分 9 分)
(1)合理。(1 分)
(2)网架安装方法还有:滑移法、整体吊装法、整体提升法、整体顶升法。(每项 1 分,满分 4 分)
(3)高空散装法施工的特点还有:脚手架用量大,工期较长,需占建筑物场内用地,且技术上有一定难度。
(每项 1 分,满分 4 分)
4.(满分 2 分)
不成立。(1 分)
理由:虽然是建设单位责任,但是电缆电线安装工作的总时差大于延误的时间,并不影响实质工期。(1 分)
案例(三)
1.(满分 3 分)
(1)PDCA 工作方法内容:P-计划;D-实施;C-检查;A-处理(1 分)
(2)A 的内容为纠偏和预防改进——管理(2 分)
2.(满分 4 分)
不妥之一:回填土料混有建筑垃圾;
正确做法:将回填土中的建筑垃圾清理干净后再进行回填。
不妥之二:土料铺填厚度大于 400mm;
正确做法:振动压实机土料铺填厚度 250-350mm。
不妥之三:采用振动压实机压实 2 遍成活;
正确做法:采用振动压实机压实 3-4 遍成活。
不妥之四:环刀法取的土样统一送检测单位检测压实系数;
正确做法:分层环刀取样送检,待下一层合格后,方可进行上一层土回填。
3.(满分 7 分)
(1)不妥之处:
不妥之一:模板独立支设(理由:模板及支架独立支设);(1 分)
不妥之二:剔除模板用钢丝网(应保留);(1 分)
不妥之三:基础底板后浇带 10d 后封闭等(至少 28d)。(1 分)
后浇带混凝土施工的主要技术措施:(每项 1 分,满分 4 分)
1)采用微膨胀混凝土;
2)强度等级比原结构强度提高一级;
3)保持至少 14d 的湿润养护;
4)接缝处按施工缝的要求处理。
4.(满分 6 分)
(1)不妥之处及正确做法:(3 分)
不妥之一:钢筋套筒连接灌浆留置了 3 组边长为 70.7mm 的立方体;
正确做法:应留置 3 组 40mm×40mm×160mm 的长方体试件。
不妥之二:留置了 1 组边长 70.7mm 的立方体坐浆料标准养护试件;
正确做法:应留置不少于 3 组立方体坐浆料标准养护试件。
不妥之三:施工单位选取第 4 层外墙板竖缝两侧 11m
2的部位在现场进行淋水试验;
正确做法:应为相邻两层四块墙板形成的水平和竖向十字接缝区域,面积不得少于 10m2,进行现场淋水试验。
(2)灌浆应饱满、密实、所有出口均应出浆。(3 分)
案例(四)
1.(满分 4 分)
偿债能力评价还包括:借款偿还期、资产负债率、流动比率、速动比率。——超教材,工程经济 P29
2.(每项 1 分,满分 5 分)
(1)依法履约原则;(2)诚实信用原则;(3)全面履行原则;
(4)协调合作原则;(5)维护权益原则;(6)动态管理原则。
3.(满分 6 分)
(1)签约合同价=82000+20500+12800+2470+3750=121520.00(万元)(2 分)
(2)强制性规定还有:工程量清单的使用范围、计价方式、竞争费用、风险处理、工程量计算规则。(每项 1 分,满分 4 分)
4.(满分 7 分)
A 方案成本系数=8750/(8750+8640+8525)=0.338(1 分)
B 方案成本系数=8640/(8750+8640+8525)=0.333(1 分)
C 方案成本系数 8525/(8750+8640+8525)=0.329(1 分)
A 方案价值系数=0.33/0.338=0.976;(1 分)
B 方案价值系数=0.35/0.333=1.051;(1 分)
C 方案价值系数=0.32/0.329=0.973;(1 分)
确定选择 B 方案(1 分)
5.(满分 8 分)
事项 1 中的 5.60 万元费用索赔成立(1 分);
理由:特大暴雨属于不可抗力,此时应开发商要求留守现场照管工地费用由建设单位承担(1 分)。
事项 2 中的 4.60 万元费用索赔成立(1 分);
理由:设计采用了新材料的检测单位检验试验费由建设单位在工程建设其他费用中列支(1 分)。
事项 3 中的 68.00 万元费用索赔不成立(1 分);
理由:总包单位为配合开发商自行发包的燃气等专业工程施工的脚手架费用,属于总承包服务费(1 分)。
事项 4 中的 1142.00 万元费用索赔不成立(1 分);
理由:合同未约定垫资利息的,不考虑垫资利息(1 分)。
案例(五)
1.(满分 6 分)
(1)施工机械设备选择的原则还有:适应性、高效性、稳定性和安全性。(2 分)
(2)施工机械设备选择的方法还有:折算费用法(等值成本法)、界限时间比较法和综合评分法等。(2 分)
(3)起重机的稳定性、制动器的可靠性、重物的平稳性、绑扎的牢固性。(2 分)
2.(满分 6 分)
(1)还包括:安全教育培训、劳动保护、应急准备等,以及必要的安全监测、检测、论证所需费用。(每项 1 分,满分 3 分)
(2)高处作业项还有:洞口作业、操作平台、交叉作业及安全防护网搭设。(每项 1 分,满分 3 分)
3.(满分 6 分)
(1)(2 分)
不妥之一:“施工中编写了项目检测试验计划”;
理由:施工检测试验计划应在工程施工前编制。
不妥之二:“报项目经理审批同意后实施”;
理由:应报送监理单位进行审查和监督实施。
(2)还有:(4 分)
1)检测试验参数;2)试样规格;3)代表批量;4)施工部位;
4.(满分 6 分)
(1)设定用电控制指标的有:生产、生活、办公和施工设备。(每项 1 分,满分 3 分)
(2)定期管理的内容:计量、核算、对比分析,并有预防与纠正措施。(每项 1 分,满分 3 分)
5.(满分 6 分)综合性很强,超教材明显
不妥之处 1:立管 DN100,1 根;
理由:立管不应少于 2 根。
不妥之处 2:消防竖管 DN100;

不妥之处 3:消火栓接口的前端没有设置截止阀;
理由:消火栓接口的前端应设置截止阀。
不妥之处 4:消火栓接口的间距 40m;
理由:消火栓接口设置在明显且易于操作的部位,消火栓接口或软管接口的间距,多层建筑不应大于 50m,高层建筑不应大于 30m。
不妥之处 5:消防箱放置的位置和数量;
理由:消防水带、水枪及软管设置在结构施工完毕的楼梯处,且每个设置点不小于 2 套。
不妥之处 6:消火栓接口处缺消防软管接口;
理由:应设置消防软管接口


