2023年二级建造师执业资格考试《市政公用工程管理与实务》密押试卷(A)
一、单项选择题(共 20 题,每题 1 分。每题的备选项中,只有 1 个最符合题意)
1.在沥青路面结构中,直接承受行车荷载的是( )。
A.面层 B.基层 C.垫层 D.底基层
2.水泥混凝土路面以 28d 龄期的( )控制面层混凝土强度。
A.抗压强度 B.弯拉强度 C.无侧限抗压强度 D.压实度
3.传递很大的荷载,并且保证桥跨结构能产生一定变位的结构是( )。
A.墩台基础 B.桥面铺装 C.支座 D.伸缩缝
4.关于混凝土拌合物的坍落度说法错误的是( )。
A.坍落度的评定,以搅拌地点为主
B.应在搅拌地点和浇筑地点分别随机取样检测
C.每一工作班组或每一单元结构物不应少于两次
D.如混凝土拌合物从搅拌机出料至浇筑入模时间不超过 15min 时,其坍落度可仅在搅拌地点检测
5.在原混凝土面上浇筑新混凝土时,相接面应( ),并清洗干净,表面湿润但不得有积水。
A.光滑 B.磨平 C.凿毛 D.抛光
6.关于高压喷射注浆法对地基进行加固的说法正确的是( )。
A.地质复杂的地区采用高压喷射注浆法效果显著
B.常用喷射介质包括水泥浆液、压缩空气和水
C.采用双管法进行高压水泥浆的喷射范围最大
D.旋喷施工后固结体呈扇形
7.下列不属于给水处理中深度处理方法的是( )。
A.臭氧活性炭法 B.格栅截滤法
C.活性炭吸附法 D.光催化氧化法
8.一般浊度小于 3mg/L 的河流水,应采用的水处理工艺是( )。
A.原水→筛网隔滤或消毒
B.原水→接触过滤→消毒
C.原水→混凝→沉淀或澄清→过滤→消毒
D.原水→调蓄预沉→混凝→沉淀或澄清→过滤→消毒
9.某水池设计水位深 6m,满水试验时,从开始灌水到测初读数的时间间隔不小于( )d。
A.4 B.5 C.6 D.7
10.管道不开槽法施工中,成本相对较低的方法是( )。
A.密闭式顶管 B.浅埋暗挖 C.夯管 D.盾构
11.下列水处理构筑物中,属于给水处理构筑物的是( )。
A.消化池 B.曝气池 C.氧化沟 D.混凝沉淀池
12.水池池壁混凝土浇筑时,采用( )来平衡混凝土浇筑对模板侧压力。
A.铁丝固定 B.穿墙螺栓 C.模板卡具 D.支撑
13.塑料或橡胶止水带接头应采用( )连接。
A.叠接 B.热接 C.双面焊接 D.绑扎
14.下列关于膨润土防水毯施工的说法,正确的是( )。
A.膨润土防水毯现场铺设连接应采用焊接形式
B.铺设过程中应避免出现品字接缝,采用十字形分布
C.坡面铺设完成后,应在底面留下不少于 2m 的膨润土防水毯余量。
D.搭接宽度应控制在 200±50mm 范围
15.给水排水管道的功能性试验包括( )。
A.压力管道的水压试验和无压管道的严密性试验 B.压力管道的水压试验和无压管道的抗渗试验
C.压力管道的强度试验和无压管道的抗渗性试验 D.压力管道的强度试验和无压管道的满水试验
16.下列关于工程项目投标过程说法错误的是( )。
A.投标文件应实质性的响应招标文件要求
B.目前通常采用网上报名的形式进行投标报名
C.投标保证金有效期应当超出投标有效期 30 天
D.分部分项工程量清单数量为工程实体数量,需计算实际数量
17.合同期内发生的索赔事件均应做好同期记录并形成完整资料,作为工程( )的组成部分。
A.合同文件 B.技术资料 C.竣工资料 D.计量资料
18.根据双代号网络图绘图规则,下列网络图中的绘图错误有( )处。

A.2 B.3 C.4 D.5
19.后张法预应力混凝土质量验收主控项目不包括( )。
A.预应力筋外观不得有弯折、裂纹 B.预应力筋孔道灌浆料质量
C.张拉前混凝土构件强度 D.预应力筋张拉允许偏差
20.因工程建设需要临时占用、挖掘道路的施工,说法错误的是( )
A.需经市政行政主管部门和公安交通管理部门批准后方可占用
B.占用期未按批准自行扩大面积、延长占用时间者可处以 2 万元以下罚款
C.施工单位施工完毕应在消除障碍物及安全隐患后,组织恢复道路通行
D.在规定的路段和时间进行占用道路施工应设置明显的安全警示标志
二、多项选择题(共 10 题,每题 2 分。每题的备选项中,有 2 个或者 2 个以上符合题意,至少有一个错项。错选,本题不得分;少选,所选的每个选项得 0.5 分)。
21.路基填土不应使用( )。
A.沼泽土 B.淤泥
C.黏土 D.生活垃圾土
E.石灰土
22.模板、支架和拱架应结构简单、制造与装拆方便,应具有足够的( )。
A.承载能力 B.灵活性
C.刚度 D.抗拉能力
E.稳定性
23.悬臂浇筑法悬浇梁体应分为四大部分,分别是( )。
A.0 号块
B.0 号块两侧对称悬浇段
C.临时固结浇筑
D.边跨段支架法现浇段
E.跨中合龙段
24.深基坑的地基加固方法是( )。
A.水泥土搅拌 B.高压喷射注浆法
C.注浆 D.换填加固
E.满堂加固
25.主要材料可反复使用的基坑围护结构包括( )。
A.钢板桩 B.灌注桩
C.SMW 工法桩 D.地下连续墙
E.重力式水泥土挡墙
26.( )级燃气管道采用聚乙烯管材时应符合有关标准的规定进行使用。
A.次高压 A B.次高压 B
C.中压 A D.中压 B
E.低压
27.下列关于 HDPE 膜生产焊接说法错误的有( )。
A.试验性焊接合格后进行生产焊接 B.边坡底部焊缝应从坡脚向场底延伸至少 1m
C.采用挤压焊接时,应去除膜焊接地方表面的氧化物 D.所有焊缝必须从头到尾焊接牢固
E.为避免拱起,宜在一天中气温较低时进行施工
28.风险等级为一级的隧道工程包括( )。
A.浅埋隧道 B.超浅埋隧道
C.深埋隧道 D.一般断面隧道
E.超大断面隧道
29.沥青贯入式面层可采用( )等方法进行压实度的测定。
A.钻芯法 B.环刀法
C.蜡封法 D.灌砂法
E.灌水法
30.二级建造师执业工程范围中,桥梁工程包含的有( )的建设、养护和维修。
A.跨线桥 B.架空管桥
C.城市环路 D.人行天桥
E.地下人行通道
三、实务操作和案例分析题(共 4 题,每题 20 分)。
(一)
【背景资料】
某项目部承建一项城市道路工程,全长为 3.0km,工期为当年 8 月至次年的 3 月。路面结构从下往上为:200mm 厚级配砂砾垫层,350mm 厚水泥稳定碎石层,SMA 沥青混凝土面层。
项目部进场后,项目负责人编制了实施性的施工组织设计,经总监理工程师审查同意后,即开始工程项目的实施。
项目部根据建设工程安全检查标准要求在大门口设置了工程概况牌、安全生产牌。
按照工程进展,沥青混凝土面层施工正值冬季,监理工程师要求项目部提供沥青混凝土面层施工措施。在面层施工过程中,项目部安排有关人员进行了横向冷接缝的处理,保证连接处的质量。
【问题】
1.350mm 厚的水泥稳定碎石层属于路面结构中的哪个层次?说明其作用。
2.施工组织设计的审批程序存在哪些问题?并写出正确做法。
3.根据背景材料,项目部还需设置哪些标牌?
4.沥青混凝土冬季施工应采取的措施是什么?
5.SMA 冷接缝如何处理才能保证其质量?
(二)
【背景资料】
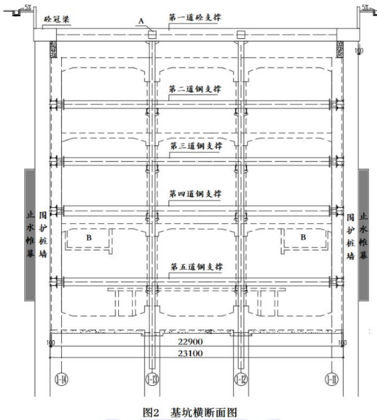
某市兴建地铁线路,建九路车站采用明挖法进行施工,基坑主体围护结构采用钻孔灌注桩,竖向共设一道混凝土撑,四道钢支撑。四道钢支撑分别采用φ609mm×16mm 钢管撑和φ800mm×18mm 钢管撑。车站主体处于上层滞水,其中粉土段加设φ800mm@500mm 高压喷射注浆止水帷幕。基坑竖向布置及帷幕位置如图 2 所示。整体施工排水采用随挖随排方式进行。

施工中发生如下事件:
事件 1:项目部制定的内支撑体系施工及基坑监测方案如下(节选):
(1)施工单位委托了第三方监测单位并由其编制了基坑监测方案,监测方案经监理工程师认可后实施。
(2)施工与拆除顺序应与设计工况一致,必须坚持先开挖后支撑的原则。
(3)内支撑与挡土结构之间应紧密接触,如有间隙应用强度不低于 C30 细石混凝土填充密实。
事件 2:浇筑主体结构墙壁时,左右对称、水平、分层连续浇筑;为加快进度,侧墙浇筑后继续灌注顶板混凝土。
【问题】
1.试分析第二道至第五道钢支撑分别应选用哪种型号的钢管,并说明原因。
2.指出图中 A、B 名称,并分别说明其作用。
3.逐条判断事件 1 中三条方案是否正确?如有错误的请改正。
4.请指出事件 2 的错误之处并给出正确做法。
(三)
【背景资料】
甲公司承建一地铁车站工程,车站采用明挖法施工,施工场地地面标高±0m。地下水埋深 6.6m,车站顶板埋深 2m。
车站设计基坑长 50m,宽 20m,深 10m,支护结构采用地下连续墙和 3 道钢筋混凝土支撑,围护结构顶部设置钢筋混凝土冠梁。
施工过程中发生了如下事件:
事件一:甲公司编制了基坑专项施工方案,确定了降水方式为单级单排真空井点降水,井点布置如下图所示。

图 3 真空井点平面布置示意图
事件二:方案确定了地下连续墙施工工艺流程:开挖导沟→修筑 A→开挖沟槽→清除槽底淤泥和残渣→吊放 B→吊放 C→下导管→灌注水下混凝土→拔出 B。
事件三:基坑开挖过程中因未及时支撑,造成基坑坍塌事故,事故造成 4 人死亡,5 人重伤,经济损失 3000 万元,项目部及时组织人员对伤员进行抢救,同时积极组织力量对现场进行清理和恢复,准备立即重新组织施工以保证工期,但被当地政府建设和安监部门叫停。
【问题】
1.事件一中车站基坑降水方式及井点布置有何不妥?给出正确做法。
2.写出事件二地下连续墙施工工艺流程中 A、B、C 的名称,简述 A 的主要作用。
3.按照等级划分,该基坑事故属于什么事故?请说明理由。
4.指出项目部事故处理做法的错误之处并改正。
5.本工程有哪些分部(分项)工程需要专家论证?
(四)
【背景资料】
某市政公司承建一城市道路改建工程,其中涉及一座护城河跨线桥施工,该桥梁工程包括桥跨及引道施工,桥梁部分起止桩号 K59+785.75~K59+843.25,梁片采用预制场现浇先张法预制空心板梁,桥梁两侧引道里程起止桩号分别为:K59+740.52~K59+785.75 和 K59+843.25~K59+893.95。横断面布置采用 0.5m(护栏)+8.5m(车行道)+0.5m (中分带护栏)+8.5m(车行道)+0.5m(护栏)的形式。
由于该桥为跨河桥梁,故采用架桥机进行架设。为减少桥梁和引道部位的不均匀沉降,施工单位依据图纸要求对台背引道位置采取了相应的措施。依据设计要求,引道基层采用二灰稳定粒料进行摊铺压实作业。施工单位购买了散装材料在现场拌和时,被监理工程师发现,要求其停工整改。
梁体架设完毕后,开始转向桥面施工。工序包括:①桥面保护层施工,②桥面预留钢筋矫正,③C 结构层施工,④铰缝施工(铰缝构造如图 5 所示),⑤沥青混凝土桥面面层施工,⑥防撞墙护栏施工。

【问题】
1.列式计算该桥防撞墙护栏的长度。
2.台背引道位置可采用什么处理措施来防止不均匀沉降?
3.铰缝构造图中的图 1、图 2 分别代表左图中的哪个截面?图中 K 代表什么?
4.请写出桥面施工的正确顺序(用序号及“→”表示)。工序③中 C 代表什么,通常可用何种材料施工?
5.引道施工中,监理工程师要求施工单位停工整改的原因是什么?并写出正确做法。
京疆援培网校二级建造师考试辅导网络课程招生中
扫码试学网络课程


