2022年一级建造师《水利水电工程管理与实务》补考考前模拟卷(二)
一、单项选择题(共 20 题,每题 1 分,每题的备选项中,只有一个最符合题意。)
1.混凝土拌合楼的控制中心在( )。
A.进料层
B.拌合层
C.配料层
D.出料层
2.下列受弯构件的钢筋接头方式中,同一截面钢筋接头面积占受力钢筋总面积的百分率不符合规范规定的是( )。
A.闪光对焊,受拉区 42%
B.绑扎,受拉区 40%
C.绑扎,受压区 45%
D.机械连接,受拉区 38%
3.下列材料中,属于无机水硬性胶凝材料的是( )。
A.石灰
B.水玻璃
C.水泥
D.沥青
4.根据《水利建设工程文明工地创建管理暂行办法》(水精[2012]1 号),申报水利系统文明建设工地的项目已完工程量一般应达全部建安工程量的( )以上。
A.20%
B.30%
C.50%
D.75%
5.水库大坝首次安全鉴定应在( )后 5 年内进行。
A.竣工验收
B.阶段验收
C.蓄水验收
D.运行管理验收
6.根据《水利水电工程等级划分及洪水标准》(SL252-2017) 的规定,某水利水电工程的水库总库容为 1 亿 m,其次要建筑物级别应为( )级。
A.2
B.3
C.4
D.5
7.重力式混凝土围堰、浆砌石围堰采用抗剪强度公式计算时,安全系数 K 应不小于( )。
A.1.05
B.1.15
C.2.5
D.3.5
8.明挖爆破施工,施工单位发出鸣 10s,停,鸣 10s,停,鸣 10s 的音响信号属于( )。
A.预告信号
B.起爆信号
C.准备信号
D.解除信号
9.在水利工程建设程序中,不属于前期工作的是( )。
A.项目建议书
B.可行性研究报告
C.招标设计
D.初步设计
10.根据《水利水电工程标准施工招标文件》(2009 年版),合同中有如下内容:①中标通知书;②专用合同条款;③通用合同条款;④技术标准和要求;⑤图纸;⑥已标价的工程量清单;⑦协议书。如前后不一致时,其解释顺序正确的是( )。
A.⑦①②③⑥④⑤
B.⑦①③②⑥④⑤
C.⑦①②③④⑤⑥
D.⑦①③②④⑤⑥
11.水库工程中,重叠库容指防洪库容与( )重叠部分。
A.兴利库容
B.共用库容
C.调洪库容
D.死库容
12.某水轮机型号为 HL220-LJ-300,其中,“300”表示 ( )。
A.比转数
B.工作水头
C.转轮标称直径
D.引水室特征
13.岩石根据坚固系数的大小分级,XV 级的坚固系数的范围是( )。
A.10~25
B.20~30
C.20~25
D.25~30
14.下列不属于冲击式水轮机的是( )。
A.水斗式
B.斜击式
C.斜流式
D.双击式
15.在隧洞开挖中为获得一个平整的开挖壁面一般采用的爆破形式为( )。
A.预裂爆破
B.洞室爆破
C.药壶爆破
D.光面爆破
16.下列关于堤防填筑作业的说法错误的是( )。
A.地面起伏不平时,应顺坡填筑
B.堤身两侧设有压载平台,两者应按设计断面同步分层填筑
C.相邻施工段的作业面宜均衡上升,段间出现高差,应以斜坡面相接
D.光面碾压的黏性土填料层,在新层铺料前,应作刨毛处理
17.水利水电建设项目竣工环境保护验收技术工作分为三个阶段,下列不属于这三阶段的是( )。
A.准备阶段
B.验收调查阶段
C.技术验收阶段
D.现场验收阶段
18.对于成桩直径为 0.6m 的高压喷射灌浆,施工方法宜采用( )。
A.单管法
B.二管法
C.三管法
D.新三管法
19.重力坝应力分析中,常用的模型试验方法不包括( )。
A.偏光弹性试验
B.激光全息试验
C.脆性材料试验
D.塑性材料试验
20.下列适用于建造装配式钢板桩格型围堰的地基是( )。
A.细砂砾石层地基
B.岩石地基
C.软土地基
D.膨胀土地基
二、多项选择题(共 10 题,每题 2 分。每题的备选项中,有 2 个或者 2 个以上符合题意,至少有一个错项。错选,本题不得分;少选,所选的每个选项得 0.5 分)
21.水利工程施工中,基坑经常性排水量的组成包括( )。
A.围堰渗流量
B.覆盖层含水量
C.基坑初期积水量
D.排水时段降雨量
E.施工弃水量
22.土石坝进行渗流分析的方法较简单的有( )。
A.流网法
B.水力学法
C.直线比例法
D.直线展开法
E.改进阻力系数法
23.下列关于加油站、油库应遵守的规定的说法,正确的有( )。
A.独立建筑,与其他设施之间的防火安全距离至少为 45m
B.周围应设有高度至少为 1.8m 的围墙、栅栏
C.库区内道路应为环形车道,路宽至少为 3.5m
D.应安装覆盖库(站)区的避雷装置,且应定期检测,其接地电阻最大为 20Ω
E.库区内严禁一切火源、 吸烟及使用手机
24.混凝土拌合物在运输过程中出现下列情况之一者,应按不合格料处理( )。
A.混凝土产生初凝
B.混凝土产生终凝
C.混凝土塑性降低较多无法振捣
D.混凝土失水过多
E.混凝土中含有冻块严重影响混凝土质量
25.水闸的混凝土施工原则有( )。
A.先浅后深
B.先重后轻
C.先高后矮
D.先主后次
E.先上游后下游
26.水利生产经营单位是指( )。
A.水利工程项目法人
B.水利水电施工企业
C.水利水电设计企业
D.水利工程管理单位
E.水利水电监理单位
27.下列水利水电工程验收中,属于专项验收的有( )。
A.环境保护验收
B.水土保持验收
C.移民安置验收
D.工程档案验收
E.竣工图验收
28.土坝截流施工中,改善龙口水力条件的措施包括( )。
A.定向爆破
B.双戗截流
C.三戗截流
D.宽戗截流
E.平抛垫底
29.下列属于水利 PPP 项目实施原则的有( )。
A.依法合规
B.利益共享
C.收益最大化
D.企业受益
E.风险共担
30.根据《水利工程施工转包违法分包等违法行为认定查处管理暂行办法》(水建管[2016]420号),下列情形中,属于违法分包的有( )。
A.承包人将工程分包给不具备相应资质的单位
B.将工程分包给不具备相应资质的个人
C.承包人将工程分包给不具备安全生产许可的单位
D.承包人将主要建筑物的主体结构劳务作业进行分包
E.承包人未设立现场管理机构
三、实务操作和案例分析题(共 5 题,(一)(二)(三)题各 20 分,(四)(五)题各30 分)
案例(一)
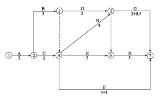
某工程项目施工采用《水利水电工程标准施工招标文件》(2009 年版),招标文件工期为15 个月。承包方投标所报工期为 13 个月。合同总价确定为 8000 万元。合同约定:实际完成工程量超过估计工程量 25%以上时允许调整单价;拖延工期每天赔偿金为合同总价的 1‰,最高拖延工期赔偿限额为合同总价的 10%;若能提前竣工,每提前 1 天的奖金按合同总价的1‰计算。
承包方开工前编制并经总监理工程师认可的施工进度计划如下图所示。

施工过程中发生了以下 4 个事件,致使承包单位完成该项目的施工实际用了 15 个月。
事件 1:A、C 两项工作为土方工程,工程量均为 16 万 m3,土方工程的合同单价为 16 元/m3。
实际工程量与估计工程量相等。施工按计划进行 4 个月后,总监理工程师以设计变更通知发布新增土方工程 N 的指示。该工作的性质和施工难度与 A、C 工作相同,工程量为 32 万 m3。
N 工作在 B 和 C 工作完成后开始施工,且为 H 和 G 的紧前工作。总监理工程师与承包单位依据合同约定协商后,确定的土方变更单价为 14 元/m3,用 4 个月完成。3 项土方工程均租用1 台机械开挖,机械租赁费为 1 万元/(月·台)。N 工作实际用了 4.5 个月。
事件 2:F 工作,因设计变更等待新图纸延误 1 个月。
事件 3:G 工作由于连续降雨累计 1 个月导致实际施工 3 个月完成,其中 0.5 个月的日降雨量超过当地 30 年气象资料记载的最大强度,按合同专用条款的界定为风险事件。
事件 4:H 工作由于分包单位施工的工程质量不合格造成返工,实际 5.5 个月完成。
由于以上事件,承包单位提出以下索赔要求:
(1)顺延工期 6 个月。理由是:完成 N 工作 4 个月;变更设计图纸延误 1 个月;连续降雨属于不利的条件和障碍影响 0.5 个月;监理工程师未能很好地控制分包单位的施工质量,应补偿工期 0.5 个月。
(2)N 工作的费用补偿=16 元/m3×32 万 m3=512 万元。
(3)由于第5个月后才能开始N工作的施工,要求补偿5个月的机械闲置费5×1万元/(月·台)×1 台=5 万元。
【问题】(1)请对以上施工过程中发生的 4 个事件进行合同责任分析。
(2)根据总监理工程师认可的施工进度计划,应给承包单位顺延的工期是多少?说明理由。
(3)确定应补偿承包单位的费用,并说明理由。
(4)分析承包单位应获得工期提前奖励还是承担拖延工期违约赔偿责任,并计算其金额。
案例(二)
某水闸建筑在砂质壤土地基上,水闸每孔净宽 8m,共 3 孔,采用平板闸门,闸门采用一台门式启闭机启闭,闸墩厚度为 2m,因闸室的总宽度较小,故不分缝。闸底板的总宽度为 30m,净宽为 24m,底板顺水流方向长度为 20m。施工中发现由于平板闸门主轨、侧轨安装出现严重偏差,产生了质量事故。
【问题】
(1)根据水利部 1999 年 3 月 4 日颁布的《水利工程质量事故处理暂行规定》(水利部令第 9 号),进行质量事故处理的基本要求是什么?
(2)根据水利部 1999 年 3 月 4 日颁布的《水利工程质量事故处理暂行规定》(水利部令第9 号),工程质量事故分类的依据是什么?工程质量事故分为哪几类?
(3)工程采用的是门式启闭机,安装时应注意哪些方面?
(4)平板闸门的安装工艺一般包括哪些内容?
案例(三)
某城市围堰堤为 1 级堤防,在原排涝西侧 200m 新建一座排涝泵站(包括进水建筑物、泵室、穿堤涵洞、出水建筑物等),总装机容量 1980kW,合同工期为 16 个月,自 2008 年 11 月至2010 年 2 月。该地区主汛期为 6、7、8 三个月,泵室、穿堤涵洞等主体工程安排在非汛期施工。施工过程中发生如下事件:
事件一:施工单位施工组织设计中汛前以泵室、进水建筑物施工为关键工作,穿堤涵洞、出水建筑物施工相继安排。
事件二:穿堤涵洞的土方开挖及回填工作量不大,施工单位将该土方工程分包给具有相应资质的单位。厂房、管理房的内、外装饰(包括玻璃幕墙、贴面)分包给具有相应资质的单位。
事件三:竣工验收前,项目法人委托检测单位对堤身填筑和混凝土护坡质量进行抽检。
事件四: 2009 年 3 月份的施工进度计划中,3 月 3 日穿堤涵洞周边堤防土方回填至设计高程,3 月 4 日至 3 月 14 日进行堤外侧现浇混凝土护坡施工。
【问题】
1.事件一中,施工安排是否妥当?说明理由。
2.事件二中,分包是否允许?说明理由。
3.事件三中,工程质量抽检的内容至少包括哪几项?
4.事件四中,进度安排是否合理?说明理由。
案例(四)
某水库工程总库容为 150 万 m,发电装机容量为 48MW,工程建设内容包括:大坝、溢洪道、水电站等建筑物,该工程由某流域管理机构组建的项目法人负责建设,某施工单位负责施工。
施工过程中发生如下事件:
事件一:现场做出如下规定能够以保证施工安全。
(1)规范使用“三宝”,加强对“四口”的防护;
(2)采用开敞式高压配电装置独立开关站,其场地四周设置高度不低于 1.5m 的围墙;
(3)人货两用的施工升降机在使用时可以人货混装;
(4)利用电热的办公室,电热设施由值班人员轮流保管;
(5)严禁穿拖鞋进入施工现场,严禁酒后作业。
事件二:承包人在开工前进行的有关施工准备工作如下:①土料场清表;②测量基准点接收;③水泥、砂、石、钢筋等原材料检验;④土料场规划;⑤混凝土配合比设计;⑥土围堰填筑;⑦基坑排水;⑧施工措施计划编报;⑨生活营地建设;⑩木工加工厂搭建;⑪混凝土拌合系统建设。
事件三:导流隧洞石方爆破开挖采取从两端同时施工的相向开挖方式。根据施工安排,相向开挖的两个工作面在相距 20m 距离放炮时,双方人员均需撤离工作面;相距 10m 时,需停止一方工作,单向开挖贯通。
事件四:混凝土重力坝在浇筑过程中,发生质量事故,导致直接经济损失 100 万元,影响工期 25d。事故发生后,施工单位按照“四不放过”原则,组织有关单位指定处理方案,报监理机构批准后,对事故进行了处理。
事件五:在进行水电站深基坑开挖过程中,由于开挖边坡较陡,引起塌方,致 3 人死亡,2人重伤,1 人轻伤,事故发生后,施工单位、项目法人立即向流域管理机构和当地水行政主管部门及安全生产监督管理部门如实进行了报告,在事故调查时发现,该工程施工前,施工单位已按安全生产的相关规定,并结合本工程的实际情况,编制了深基坑开挖专项施工方案,该方案编制完成后直接报监理单位批准实施。
【问题】
1.指出水库工程的等别,大坝等主要建筑物的级别,说明注册建造师执业工程规模及执业级别要求。
2.指出事件一中施工安全规定中不妥之处并说明正确做法。指出施工现场“四口”内容。
3.指出事件二中直接为混凝士工程所做的施工准备工作(用工作编号表示)。
4.根据《水工建筑物地下开挖工程施工技术规范》,改正上述事件三中隧洞开挖施工方案的不妥之处。
5.指出“四不放过”原则的具体内容。根据《水利工程质量事故处理暂行规定》(水利部令第 9 号),确定事件四中质量事故的类别,指出本工程质量事故处理在方案制定的组织和报批程序方面的不妥之处,并说明正确做法。
6.根据《水利水电工程施工安全管理导则》(SL721-2015) ,专项施工方案中应包括哪些方面的内容?
事件二中施工单位编制的基坑开挖专项施工方案的报批过程有无不妥之处?如有请分别说明理由。
案例(五)
某施工单位中标一水利枢纽工程,地基是岩基。工程包括水库、混凝土坝、泵站、溢洪道等,合同工期为 12 个月,从 2017 年 3 月初到 2018 年 3 月初。水库总库容为 1.4 亿 m3,年引水量为 2 亿 m3,施工单位中标后与招标人签订了合同,按照合同要求进场施工。
在施工过程中发生如下事件:
事件一:施工单位按照合同要求采购了普通硅酸盐水泥,于 2017 年 4 月 20 日到厂,到厂后由于计划调整,直到 2017 年 8 月 1 日才使用。
事件二:混凝土坝根据设计要求,需要能够抵抗 1.2MPa 的水压力不渗水同时具有良好的抗冻性。施工单位按照要求对混凝土试块进行了抗渗性和抗冻性试验,发现混凝土试块抗渗等级为 W10、抗冻等级为 F100。
事件三:浇筑混凝土大坝前,施工单位先对地基进行了帷幕灌浆,灌浆排孔共 2 排,灌浆后施工单位对其进行了质量检查。
事件四:混凝土大坝施工中,施工单位根据相关规定对混凝土进行质量检查。可采用钻孔取芯和无损检验的方法。
【问题】
1.说明此水利枢纽工程的等别规模、混凝土坝和临时性水工建筑物的级别,以及本工程施工项目负责人应具有的建造师级别。
2.事件一中的水泥能否直接使用?如果不能,应先如何处理?还有哪些情况的水泥应进行相同处理?
3.事件二中 W10、F100 分别表示什么意思,是否满足混凝土大坝的抗渗要求。
4.事件三中帷幕灌浆 2 排排孔的灌浆顺序是什么?说明帷幕灌浆质量合格的要求。
5.事件四中现场混凝土质量检验应以什么强度为主?钻孔取芯和无损检测这两种方法中,一般采用什么方法?
一级建造师《水利水电工程管理与实务》考前模拟卷二(补考)参考答案
1.【答案】C
【解析】拌合楼分为进料、贮料、配料、拌合及出料共五层,其中配料层是全楼的控制中心
2.【答案】B
【解析】(1)闪光对焊、熔槽焊、接触电渣焊、 气压焊、窄间隙焊,接头在受弯构件的受拉区不超过 50%,受压区不受限制。(2)绑扎接头在构件的受拉区中不超过 25%;在受压区不超过 50%。(3)机械连接接头在受拉区不宜超过 50%。(4)机械连接接头在受压区和装配式构件中钢筋受力较小部位。(5)焊接与绑扎接头距离钢筋弯头起点不小于 10d,并不得位于最大弯矩处。
3.【答案】C
【解析】水硬性胶凝材料不仅能在空气中硬化,而且能更好地在潮湿环境或水中硬化、保持并继续发展其强度,如水泥。选项 A、B 属于无机气硬性胶凝材料,选项 D 属于有机胶凝材料。
4.【答案】A
【解析】凡文明工地标准且满足下列申报条件的水利建设工地,即:开展文明工地创建活动半年以上;工程项目已完成的工程量,应达全部建筑安装工程量的 20%及以上,或在主体工程完工一年以内;工程进度满足总体进度计划要求。
5.【答案】A
【解析】水库大坝实行定期安全鉴定制度,首次安全鉴定应在竣工验收后 5 年内进行。
6.【答案】B
【解析】水工建筑物等级划分,由等别确定次要建筑物级别。水库总库容为 1 亿 m3,等别为Ⅱ等,次要建筑物级别是 3 级。
7.【答案】A
【解析】(1)重力式混凝土围堰、浆砌石围堰采用抗剪断公式计算时,安全系数 K'应小于 3.0,(2)排水失效时,安全系数 K'应不小于 2.5;(3)采用抗剪强度公式计算时,
安全系数 K 应不小于 1.05。
8.【答案】B
【解析】(3)起爆信号:准备信号 10min 后发出,连续三短声,即鸣 10s、停、鸣 10s、停、鸣 10s。
9.【答案】C
【解析】一般情况下,项目建议书、可行性研究报告、初步设计称为前期工作
10.【答案】C
【解析】根据《水利水电工程标准施工招标文件》(2009 年版),合同文件指组成合同的各项文件,包括:协议书、中标通知书、投标函及投标函附录专用合同条款、通用合同条款、技术标准和要求(合同技术条款)、图纸、已标价工程量清单、经合同双方确认进入合同的其他文件。上述次序也是解释合同的优先顺序。
11.【答案】A
【解析】(1)兴利库容(有效库容、调节库容)指正常蓄水位至死水位之间的水库容积,A项正确。(2)重叠库容(共用库容、结合库容)指防洪库容与兴利库容重叠部分的库容,是正常蓄水位至防洪限制水位之间汛期用于蓄洪、非汛期用于兴利的水库容积,B 项错误。
(3)调洪库容指校核洪水位至防洪限制水位之间的水库容积。用于保证下游防洪安全(指其中的防洪库容部分)及对校核洪水调洪削峰,保证大坝安全,C 项错误。(4)死库容(垫底库容)指死水位以下的水库容积。一般用于容纳水库淤沙、抬高坝前水位和库区水深。在正常运用中不调节径流,也不放空,D 项错误。
12.【答案】C
【解析】HL220-LJ-300 中,HL 表示混流式水轮机,220 表示比转数,L 表示立轴,J 表示金属蜗壳,300 表示转轮标称直径(cm)。
13.【答案】C
【解析】土石依开挖方法、开挖难易、坚固系数等,共划分为 16 级,其中土分 4 级,岩石分 12 级。岩石从第 5 级开始,第 5 级坚固系数是 1.5~2,中间每隔 2 为一级,XV 级20~25,16 级是 25 以上
14.【答案】C
【解析】冲击式水轮机按射流冲击转轮的方式不同可分为水斗式、斜击式和双击式三种
15.【答案】D
【解析】光面爆破是沿设计开挖轮廓线钻一排光面爆破炮孔,再进行主体开挖部位的爆破,然后爆破设计开挖轮廓线上的光面爆破炮孔,将作为围岩保护层的“光爆层”爆除,从而获得一个平整的开挖壁面。
16.【答案】A
【解析】地面起伏不平时,应按水平分层由低处开始逐层填筑,不得顺坡铺填;堤防横断面上的地面坡度陡于 1:5 时,应将地面坡度削至缓于 1:5。
17.【答案】C
【解析】水利水电建设项目竣工环境保护验收技术工作分为三个阶段:准备阶段、验收调查阶段、现场验收阶段。
18.【答案】A
【解析】单管法形成凝结体的范围较小,一般桩径在 0.5—0.9m;二管法 0.8—1.5m;三管法直径一般有 1.0m—2.0m。
19.【答案】D
【解析】重力坝应力分析的方法可归纳为理论分析法和模型试验两大类。目前常用的模型试验方法有偏光弹性试验、激光全息试验和脆性材料试验。
20.【答案】B
【解析】装配式钢板桩格型围堰适用于在岩石地基或混凝土基座上建造,其最大挡水水头不宜大于 30m。
21.【答案】ABDE
【解析】经常性排水应分别计算围堰和地基在设计水头的渗流量、覆盖层中的含水量、排水时降水量及施工弃水量。
22.【答案】AB
【解析】土石坝进行渗流分析的方法较简单的有水力学法和流网法。选项 C、D、E 属于闸基的渗流分析方法。
23.【答案】CE
【解析】选项 A:独立建筑,与其他设施之间的防火安全距离至少为 50m;选项 B:周围应设有高度至少为 2.0m 的围墙、栅栏;选项 D:应安装覆盖库(站)区的避雷装置,且应定期检测,其接地电阻最大为 10Ω
24.【答案】ACDE
【解析】混凝土运输过程中,因故停歇过久,混凝土拌合物出现下列情况之一者,应按不合格料处理:
(1)混凝土产生初凝。
(2)混凝土塑性降低较多,已无法振捣。
(3)混凝土被雨水淋湿严重或混凝土失水过多。
(4)混凝土中含有冻块或遭受冰冻,严重影响混凝土质量。
25.【答案】BCD
【解析】混凝土工程的施工宜掌握以闸室为中心,按照“先深后浅、先重后轻、先高后矮、先主后次”的原则进行。
26.【答案】ABD
【解析】水利生产经营单位是指水利工程项目法人、从事水利水电工程施工的企业和水利工程管理单位。
27.【答案】ABCD
【解析】水利水电工程的专项验收主要有环境保护、水土保持、移民安置以及工程档案等专项验收。
28.【答案】BCDE
【解析】土坝截流施工中,改善龙口水力条件的措施包括双戗截流、三戗截流、宽戗截流、平抛垫底。
29.【答案】ABE
【解析】各参与方按照依法合规、诚信守约、利益共享、风险共担、合理收益、公众受益的原则,规范、务实、高效实施水利 PPP 项目。
30.【答案】ABC
【解析】选项 D:正常分包;选项 E:转包。
案例一【答案】
(1)合同责任分析如下。
事件 1:属于发包方责任。
事件 2:属于发包方责任。
事件 3:日降雨量超过当地 30 年气象资料记载最大强度的 0.5 个月的延期,属于不可抗力。另 0.5 个月的延期属于承包方应承担的风险责任。
事件 4:属于承包方责任。
(2)应给承包单位顺延的工期为 1 个月。因发包方责任造成的工作增加或时间延长,应给承包单位顺延工期。属于发包方责任工作增加或时间延长后,进度网络计划如下图所示。

原合同工期为 13 个月,关键线路为 A→B→D→H。调整后工期为 14 个月,关键线路为 A→B →N→H,故工期应顺延 1 个月。
(3)由于用于 A、C 工作的施工机械原计划第 4 个月已完成工作,变更增加 N 工作后第 5个月该机械方可使用,故应给予 1 个月的闲置费;
机械闲置费:1×1 万元/(月·台)×1 台=1 万元
工程量清单中计划土方为 16+16=32 万 m
3,新增土方工程量为 32 万 m3。
应按原单价计算的新增工程量为 32×25%=8 万 m3 补偿土方工程款为 8 万 m3×16 元/m3+(32-8)万 m3×14 元/m3=464 万元
补偿承包方的总费用为 465 万元。
(4)该工程实际完成工作时间如下图所示。

实际工期为 15 个月,超过约定工期 2 个月,承包方应承担超过合同工期 1 个月的违约责任。
拖延工期赔偿费为 8000 万元×1‰×30 天=240 万元<最高赔偿限额=8000 万元×10%=800 万元。
案例二【答案】
(1)根据水利部 1999 年 3 月 4 日颁布的《水利工程质量事故处理暂行规定》(水利部令第9 号),进行质量事故处理的基本要求是:
①发生质量事故,必须坚持“事故原因不查清楚不放过、主要事故责任者和职工未受教育不放过、补救和防范措施不落实不放过”的原则,认真调查事故原因,研究处理措施,查明事故责任,做好事故处理工作。
②发生质量事故后,必须针对事故原因提出工程处理方案,经有关单位审定后实施。
③事故处理需要进行设计变更的,需原设计单位或有资质的单位提出设计变更方案。需要进行重大设计变更的,必须经原设计审批部门审定后实施。
④事故部位处理完毕后,必须按照管理权限经过质量评定与验收后,方可投入使用或进入下一阶段施工。
⑤根据水利部 1999 年 3 月 4 日颁布的《水利工程质量事故处理暂行规定》(水利部令第 9号),小于一般质量事故的质量问题称为质量缺陷。水利工程应当实行质量缺陷备案制度。
(2)根据水利部 1999 年 3 月 4 日颁布的《水利工程质量事故处理暂行规定》(水利部令第9 号),工程质量事故按直接经济损失的大小,检查、处理事故对工期的影响时间长短和对工程正常使用的影响进行分类。分为一般质量事故、较大质量事故、重大质量事故、特大质量事故四类。
(3)门式启闭机,安装时应注意以下几个方面的问题
①门式启闭机安装应争取将门机各组成部件予以扩大预组装,然后进行扩大部件吊装,以减少高空作业工作量并加快安装速度。
②门腿安装应利用各种固定点予以加固牛腿或在坝体上游坝面处增设临时牛腿予以加固,将来门机安装后再用混凝土把牛腿预留孔处回填抹平。
③门式启闭机门腿与主梁的连接,可采用门腿法兰与主梁端翼板直接焊接的施工方法。
(4)平板闸门的安装工艺一般包括整扇吊入;分节吊入、节间螺接或轴接;分节吊入、节间焊接。
案例(三)【答案】
1.施工安排不妥。
理由:从度汛安全考虑,施工安排穿堤涵洞、出水建筑物施工应当为关键工作。在汛期之前,应该把穿堤涵洞等出水建筑物作为关键工作,在汛期来临时,可以发挥其作用。
2.不允许土方工程分包。
理由:该穿堤涵洞周边的堤防土方回填属于该 1 级堤防的组成部分,为主体工程,不得分包。
允许厂房、管理房的内、外装饰工程分包,因其专业性较强,并且在排涝泵站工程中不属于主体工程,可以通过相应程序申请分包。建设项目的主体工程不允许分包。
土石方工程属于水利水电工程的主体工程。
3.堤身填筑质量抽检的内容至少有干密度和外观尺寸。混凝土护坡质量抽检的内容至少有混凝土强度。在坝面作业中,应对铺土厚度、土块大小、含水量、压实后的干密度等进行检查, 对混凝土护坡的质量检验包括对混凝土强度、抗渗、表层等方面的抽检。
4.进度安排不合理。
理由:新填土方固结沉降尚未完成,容易引起现浇混凝土护坡开裂。土方回填后要进行压实,经过多次压实后,再结合自身的沉降,经测定后确认其稳定,才可以进行混凝土护坡的浇筑。
案例(四)【答案】
1.水库工程等别为 IV 等;水闸等主要建筑级别为 4 级;注册建造师执业工程规模为中型,执业级别为一级、二级建造师。
2.(1)场地四周设置高度不低于 1.5m 的围墙不妥,应为不低于 2.2m 的围墙;人货两用的施工升降机在使用时可以人货混装不妥,应为严禁人货混装;电热设施由值班人员轮流保管不妥,应由专人保管。
(2)四口:通道口、预留洞口、楼梯口、电梯井口;
3.③⑤⑧①。
4.不妥之处:根据施工安排,相向开挖的两个工作面在相距 20m 距离放炮时,双方人员均需撤离工作面;相距 10m 时,需停止一方工作,单向开挖贯通。
正确做法:根据规范要求,相向开挖的两个工作面在相距 30m 距离放炮时,双方人员均需撤离工作面;在相距 15m 时,应停止一方工作,单向开挖贯通。
5.四不放过原则:事故原因不查清不放过、主要事故责任者和职工未受教育不放过、补救和防范措施落实不到位不放过、责任人员未受处理不放过。
一般质量事故:(大体积混凝土;直接经济损失费用 100 万元;事故处理工期 25d,小于 1 个月)
本工程质量事故处理在方案制定的组织和报批程序方面的不妥之处:
(1)施工单位组织有关单位制定处理方案不妥,应由项目法人组织有关单位制定处理方案;
(2)报监理单位批准后,对事故进行了处理不妥,应由项目法人制定处理方案后实施,报上级水行政主管部门备案。
6.(1)专项施工方案中应包括:工程概况、编制依据、施工计划、施工工艺技术、施工安全保证措施、劳动力计划和设计计算书及相关图纸等。
(2)施工单位编制的基坑开挖专项施工方案的报批过程不妥。
理由:达到一定规模的危险性较大的工程应当由施工单位编制专项施工方案,并附具安全验算结果,经施工单位技术负责人签字以及总监理工程师核签后实施,由专职安全生产管理人员进行现场监督。深基坑专项施工方案,施工单位还应当组织专家进行论证、审查。
案例(五)【答案】
1.此水利枢纽工程的工程等别为 II 等,规模为大(2)型,混凝土坝级别为 2 级, 临时性水工建筑物级别为 4 级,施工项目负责人应具有水利水电工程专业注册一级建造师。
2.该水泥不能直接使用。应复试并按复试结果使用。
以下情况也应复试并按复试结果使用:用于承重结构的水泥,无出场证明者;储存超过 1 个月的快硬水泥;对水泥的厂名、品种、强度等级、出厂日期、抗压强度、安定性不明或对质量有怀疑者;进口水泥。
3.W10 表示混凝土能抵抗 1MPa 的水压力而不渗水;F100 表示混凝土能经受 100 次的冻融循环而不严重降低强度(抗压强度下降不超过 25%,重量损失不超过 5%)。因 1MPa<1.2MPa,故无法满足混凝土大坝的抗渗要求。
4.灌浆顺序是先灌下游排孔,再灌上游排孔。质量合格的要求:坝体混凝土与基岩接触段的透水率的合格率为 100%,其余各段的合格率不小于 96%,不合格试段的透水率不超过设计规定的 150%,且不合格试段的分布不集中。


