2022年一级建造师《市政公用工程管理与实务》补考考前模拟卷(二)
一、单项选择题
1.基层材料的选用应根据道路交通等级和路基抗冲刷能力来选择,对于重交通宜选用的基层
材料是( )。
A.沥青稳定碎石
B.沥青混凝土
C.级配粒料
D.石灰粉煤灰稳定粒料
2.沥青混凝土排水降噪路面磨耗层的结构形式为()结构。
A.密实-悬浮
B.骨架-空隙
C.骨架-密实
D.骨架-悬浮
3.关于盾构管片拼装控制表述错误的是( )。
A.一般从下部的标准管片开始,然后安装 B 型管片,最后安装楔形管片
B.拼装时,千斤顶不能全部缩回,应随管片拼装顺序分别缩回
C.先紧固轴向连接螺栓,后紧固环向螺栓
D.待推进到千斤项推力影响不到的位置后,用扭矩扳手,再一次紧固连接螺栓
4.下列喷锚暗挖法的掘进方式中,防水效果差,初期支护拆除量大的是( )。
A.单侧壁导坑法
B.双侧壁导坑法
C.中隔壁法
D.交叉中隔壁法
5.下列属于给水处理构筑物的是( )。
A.药剂间
B.工艺井
C.化验室
D.曝气池
6.路面的( ),可以缩短汽车的制动距离,降低发生交通安全事故的频率。
A.平整度好
B.承载能力大
C.抗滑能力强
D.透水性好
7.二灰稳定粒料基层中的粉煤灰,若( )含量偏高,易使路面起拱,直接影响道路基层和
面层的弯沉值。
A.二氧化硫
B.三氧化硫
C.二氧化硅
D.三氧化二铝
8.下列关于挖土路基的说法,不正确的是( )。
A.挖方段不得超挖,应留有碾压到设计高程的压实量
B.碾压时,应视土的干湿程度而采取酒水或换土、晾晒等措施
C.过街雨水支管沟槽及检查井周围应用素土填实
D.压路机不小于 12t 级,碾压应自路两边向路中心进行
9.某立交桥桥面设计标高为 56.400m, T 梁底标高为 54.200m, 桥下路面标高为 50.200m, 则该桥的桥梁高度为( ) m。
A.6.4
B.6.2
C.4.0
D.2.2
10.工程降水的土层为砂性土,降水深度为 24m,这种情况下适合采用( )方法。
A.辐射井
B.管井法
C.喷射井点法
D.真空井点法
11.对于地铁端头井,应选( ) 基坑加固方式。
A.墩式加固
B.裙边加固
C.格栅式加固
D.满堂加固
12.地下连续墙的施工工序不包括( )。
A.导墙施工
B.槽底清淤
C.吊放钢筋笼
D.拔出型钢
13.下列关于水泥混凝土道路中的垫层的说法中,正确的是( )。
A.在季节性冰冻地区,道路结构设计总厚度小于最小防冻厚度要求时,应设置排水垫层
B.水文地质条件不良的土质路堑,路基土湿度较大时,宜设置半刚性垫层
C.垫层的宽度应比路基每侧宽出 500mm,其最小厚度为 150mm
D.防冻垫层和排水垫层宜采用砂、砂砾等材料
14.关于沥青材料再生的说法中,错误的是( )。
A.再生剂主要采用低粘度石油系的矿物油
B.再生剂选择与用量的确定应考虑旧沥青的粘度、再生沥青的粘度、再生剂的粘度等因素
C.再生沥青混合料最佳沥青用量的确定方法采用马歇尔试验
D.如直接用于路面面层,交通量较大,则再生沥青混合料中旧料的含量,占 50%一 80%
15.下列影响因素中,不属于设置支架施工预拱度应考虑的是( )。
A.支架承受施工荷载引起的弹性变形
B.支架杆件接头和卸落设备受载后压缩产生的非弹性变形
C.支架立柱在环境温度下的线膨胀或压缩变形
D.支架基础受载后的沉降
16.下列关于压力管道的水压试验基本规定的说法中错误的是( )。
A.分为预试验和主试验阶段
B.水压试验进行实际渗水量测定时.宜采用注水法进行
C.采用两种(或两种以上)管材时,必须进行组合试验
D.除设计有要求外,水压试验的管段长度不宜大于 1.0km
17.下列为管道局部修补的方法为( )。
A.内衬法
B.密封法
C.缠绕法
D.破管外挤
18.用以除去水中粗大颗粒杂质的给水处理方法是( )。
A.过滤
B.软化
C.混凝沉淀
D.自然沉淀
19.下列关于施工图预算的说法中,错误的是( )。
A.施工图预算是施工单位确定投标报价的依据
B.施工图预算是工程量清单编制依据
C.传统计价模式在很大程度上给了企业自主报价的空间
D.施工预算是施工单位进行成本控制的依据
20.工程竣工报告是由( )编制。
A.施工单位
B.建设单位
C.监理单位
D.设计单位
二、多项选择题
21.换热站的管道与设备安装前,参加预埋节点数量位置复核检测的单位有( )。
A.建设单位
B.设计单位
C.监理单位
D.土建施工单位
E.工艺安装单位
22.穿越铁路的燃气管道的套管应满足的要求有( )。
A.套管两端与燃气的间隙应采用柔性的防腐、防水材料密封
B.套管宜采用钢管或钢筋混凝土管
C.套管端部距路堤坡脚外距离不应小于 1.2m
D.套管内径应比燃气管道外径大 150mm 以上
E.套管顶部距铁路路肩不得小于 2.0m
23.关于沥青混凝土面层冬期施工的说法,错误的是( )。
A.城市快速路、主干路的沥青混合料面层严禁冬期施工
B.粘层可以冬期施工
C.次干路的沥青混合料面层在低于 5°C 时应停止冬期施工
D.透层严禁冬期施工
E.封层可以冬期施工
24.按照来源性质分类,施工合同风险有( )。
A.技术风险
B.项目风险
C.地区风险
D.商务风险
E.管理风险
25.装配式梁(板)施工依照吊装机具不同,梁板架设方法分为( )。
A.移动模架法
B.起重机架梁法
C.跨墩龙门吊架梁法
D.穿巷式架桥机架梁法
E.悬臂拼装法
26.关于箱涵顶进施工,在箱涵吃土顶进之前应完成的工作包括( )。
A.工程降水
B.箱体就位
C.既有线加固
D.箱涵试项进
E.拆除后背及项进设备
27.关于大体积混凝土构筑物施工过程中防止裂缝的技术措施,正确的有( )。
A.选用水化热较低的水泥
B.增加水泥用量
C.分层浇筑混凝土
D.控制混凝土坍落度在 200mm
E.采用内部降温法来降低混凝土内外温差
28.关于模板、支架和拱架的拆除,下 列说法错误的是( )。
A.非承重侧模应在混凝土强度能保证结构棱角不损坏时方可拆除
B.芯模和预留孔道内模应在混凝土抗压强度能保证结构表面不发生塌陷和裂缝时,方可拔出
C.底模应在结构建立预应力后拆除
D.底模应在结构建立预应力前拆除
E.预应力混凝土结构的侧模应在预应力张拉后拆除
29.钻孔灌注桩基础依据成桩方式可分为( )。
A.泥浆护壁成孔
B.干作业成孔
C.沉管成孔灌注桩
D.爆破成孔
E.静压桩
30.现浇钢筋混凝土支撑体系由( )和其他附属构件组成。
A.拉锚
B.土锚
C.对撑
D.角撑
E.立柱
三、案例分析题
【案例一】
某公司中标北方道路工程项目,道路全长 3000m, 其中 K0+500 ~ K0+800 地面以下约有 2m厚的饱和黏性土。按照合同约定,于 2021 年 8 月 30 日开工,2022 年 8 月 30 日完工。道路结构由下至上为 20cm 级配碎石底基层、38cm 水泥稳定碎石基层、24cmC30 水泥混凝土面层,结构示意图如图 1 所示。

图 1 道路横断面结构示意图
施工过程中发生如下事件:
事件一:施工单位对饱和黏性土处理编写了具体的施工方案,提交监理单位审核。
事件二:底基层施工时正值冬期,项目部采取了相应的处理措施。
【问题】
(1)计算面层水泥混凝土的方量。
(2)简述基层在此处的作用。
(3)简述图 1 中结构物 A 的名称及作用。
(4)事件一中饱和黏性土可采取哪些具体的处理措施?
(5)简述事件二中项目部应采取的处理措施。
【案例二】
某公司承建一城市大桥工程,全长 845m, 桥宽 13.5m, 桥梁上部结构布置为 4x25mT 梁+6x40mT 梁+ (40m+ 80m+ 40m)悬浇连续箱梁+6*40mT 梁+4x25mT 梁。其中 40mT 梁桥跨横断面如图 2 所示。

T 梁预制场位于南岸 0#桥台一侧的路基上,设有 3 个 25mT 梁预制台座与 4 个 40mT 梁预制台座,T 梁预制周期为 10 天。
施工中发生了如下事件:
事件一: T 梁预制完成后,施工单位 T 梁存放做法如下:①存放台座高出地面 30cm。②T 梁直接支承在存放台座上。③存放时间不超过 6 个月。④多层叠放时,层与层之间以垫木隔开,不超过 3 层,上下层垫木错开。事件二:项目部编制了(40m+ 80m+40m)悬浇连续箱梁施工工艺流程,包括:①安装底模;②安装侧模;③安装内模;④拆除侧模;⑤安装底板、腹板钢筋,预应力管道;⑥安装顶板钢筋;⑦预应力张拉;⑧安装预应力筋;⑨混凝土养护; 10 浇筑箱梁混凝土。
事件三:由于工期紧张,部分张拉设备五个月共使用了 300 次,监理工程师要求项目部整改。
【问题】
(1)计算大桥需预制 40mT 梁的数量和所需花费的时间
(2)写出图 2 中结构层 A、B 和构造物 C 的名称。桥面防水层施工的前提条件是什么?
(3)根据事件一,指出施工单位 T 梁存放做法中的错误并改正。
(4)事件二中正确的施工顺序是什么? (用序号表示)
(5)写出事件三中监理工程师要求项目部整改的依据。
【案例三】
A 公司承接-管廊工程,预制拼装钢筋混凝土结构,明挖开槽施工,深度为 9 米,地质为黏性土、沙土、粉土。设计要求每层挖深 1.5 米,隨挖随施作 C20 细石混凝土喷浆护壁挂网,混凝土掺加外加剂 C,坡面设置泄水孔。其简图如图 3 所示:

图 3 明挖沟槽横断面示意图
项目部根据设计要求编制了施工组织设计,并按照规定进行了审批。在施工中发生如下事件:
事件一:安全员巡视发现施工作业人员在没有防尘措施的状态下进行喷浆施工。
事件二:综合管廊结构验收合格后,项目部准备进行基坑回填,监理工程师立即制止了项目部。
【问题】
(1)找出基坑结构简图的错误之处并改正
(2)写出图 3 中 A、B 的名称以及 h 的最小尺寸。
(3)掺入的外加剂 C 是什么?泄水孔应如何布置?
(4)喷浆施工防止粉尘的劳动保护用具和措施有哪些?
(5)说明监理工程师制止项目部回填基坑的理由,并简述管廊基坑回填应注意的事项。
【案例四】
A 公司中标一项 DN800mm 燃气管道工程。主管道全长 3.0km,设计压力为 2.0MPa,埋地敷设, 除穿越一条宽度为 50m 的非通航河道采用泥水平衡法顶管施工外,其余均采用开槽明挖施工。
施工过程中发生以下事件:
事件一:工程开工前,A 公司踏勘了施工现场,调查了地下设施、管线和周边环境,了解水文地质情况后,建议将顶管法施工改为水平定向钻施工,经建设单位同意后办理了变更手续。
事件二:项目部在沟槽开挖过程中遇到了原勘察报告未揭示的废弃砖沟,项目部经现场监理口头同意并拍照后,组织人力和机械对砖沟进行了清除。项目部就此向发包方提出计量支付, 遭到计量工程师的拒绝。
事件三:为顺利完成穿越施工,参建单位除研究设定钻进轨迹外,还采用专业配比现场配制泥浆液,以便在定向钻穿越过程中起到如下作用:软化硬质土层、调整钻进方向、润滑钻具、为泥浆马达提供保护。
事件四:由于施工工期紧,项目部抽调了张某、王某和赵某 3 人为外援。其中,张某持有的《特种设备作业人员证》有效期已过,王某从焊工岗位转入管理岗位 7 个月,赵某今年已经56 岁。
【问题】
(1)根据输气压力对燃气管道进行分类并说明该等级的燃气管道的作用。
(2)简述事件一中 A 公司将顶管法施工变更为水平定向钻施工的理由。
(3)事件二中计量工程师的做法是否合理?说明理由。
(4)试补充事件三中水平定向钻泥浆液在钻进中的作用。
(5)外援焊工是否均满足直接上岗操作条件?说明理由。
(6)简述本工程进行管道功能性试验的顺序。
【案例五】
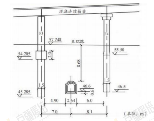
某公司承建污水处理厂再生水回用工程,再生水管线是污水处理厂再生水回用工程的一部分,受环境条件限制,其中一段管道位于城市五环路下,垂直穿越连续梁桥。隧道穿越地层主要为碎石土(0 ~ 3.31m) 、砾石土(3.31 ~ 6.5m) 、卵石(6.5 ~ 11.5m) ,设计采用暗挖隧道结构,隧道总长度约 170m,隧道净宽 1.6m, 直墙高 1.43m, 矢高 0.563m,拱顶埋深 8~10m,采用直墙拱形复合衬砌结构,由钢格栅加喷射混凝土的初期支护与模注砼的二次衬砌组成,层间设柔性防水层,初衬厚 250mm,二衬厚 250mm,采用上下台阶法施工。穿越城市五环路、连续梁桥段隧道横断面如图 4 所示。

图 4 隧道穿越五环路、连续梁桥段横断面示意图
施工前,项目部编制了浅埋暗挖隧道施工方案:
(1) 2 个竖井同时施作,隧道相向开挖以满足工期要求。
(2)穿越五环路主路及连续梁桥段时采用后退式深孔注浆加固措施;其余地段采用超前小导管注浆。
(3) 超前小导管注浆工艺流程如图 5 所示。

图 5 超前小导管注浆工艺流程图
【问题】
(1)简述竖井施工时井口防护的相关规定。
(2)结合材料分析超前小导管的注浆方法并写出注浆顺序。
(3)写出图 6 中 A、B 代表的工艺流程。
(4)简述隧道相向开挖贯通施工的控制措施。
(5)根据隧道横断面分析隧道施工对周边环境可能产生的安全风险。
(6)简述深孔注浆钻孔顺序及钻孔时施工记录应包括的内容。
2022 年一级建造师《市政公用工程管理与实务》补考考前模拟卷(二)参考答案及解析
一、单项选择题
1. 【答案】 A
【解析】本题主要考查的是水泥混凝土路面相关技术要点。基层材料的选用原则:根据道路交通等级和路基抗冲刷能力来选择基层材料。特重交通宜选用贫混凝土、碾压混凝土或沥青混凝土;重交通道路宜选用水泥稳定粒料或沥青稳定碎石:中、轻交通道路宜选择水泥或石灰粉煤灰稳定粒料或级配粒料。湿润和多雨地区,繁重交通路段宜采用排水基层。
2. 【答案】 B
【解析】沥青混合料按级配原则构成的沥青混合料,其结构组成可分为三类:密实悬浮结构、骨架-空隙结构和骨架密实结构。其中,骨架-空隙结构的粗集料所占比例大,细集料很少甚至没有。粗集料可互相嵌锁形成骨架。这种结构内摩擦角中较高,黏聚力较低。由于细集料过少,容易在粗集料之间形成空隙,可以达到排水、降噪的目的。
3. 【答案】 C
【解析】本题考查的是盾构掘进的管片拼装控制。先紧固环向连接螺栓,后紧固轴向螺栓。
4. 【答案】 B
【解析】本题主要考查的是喷锚暗挖法的掘进方式。双侧壁导坑法防水效果差,初期支护拆除量大。
5. 【答案】 A
【解析】给水处理构筑物包括:调节池、调流阀井、格栅间及药剂间、集水池、取水泵房、混凝沉淀池、澄清池、配水并、混合井、预臭氧接触池、主臭氧接触池、滤池及反冲洗设备间、紫外消毒间、膜处理车间、清水池、调蓄清水池、配水泵站等。污水处理构筑物包括:污水进水闸井、进水泵房、格栅间、沉砂池、初次沉淀池、二次沉淀池、曝气池、配水井、调节池、生物反应池、氧化沟、消化池、计量槽、闸井等。工艺井属于工艺辅助构筑物。实验室属于辅助建筑物,曝气池属于污水处理构筑物。
6. 【答案】 C
【解析】考查路面使用指标。路表面应平整、密实、粗糙、耐磨,具有较大的摩擦系数和较强的抗滑能力。路面抗滑能力强,可缩短汽车的制动距离,降低发生交通安全事故的频率。
7. 【答案】 B
【解析】二灰稳定粒料基层中的粉煤灰,若三氧化硫含量偏高,易使路面起拱,直接影响道路基层和面层的弯沉值。
8. 【答案】 C
【解析】过街雨水支管沟槽及检查井周围应用石灰土或石灰粉煤灰砂砾填实。
9. 【答案】 D
【解析】考查桥梁的相关术语。建筑高度指的是桥上行车路面(或轨顶)标高至桥跨结构最下缘之间的距离。桥面设计标高为 56.400m, T 梁底标高为 54.200m,所以建筑高度为
56.400m-54.200m=2.2000m.
10. 【答案】 B
【解析】辐射井适用于降水深度 4~20m: 管井降水深度适用范围不限:喷射井点适用于降水深度≤20m;真空井点适用于单级降水深度≤6m,多级≤12m。
11. 【答案】 C
【解析】采用墩式加固时,土体加固--般多布置在基坑周边阳角位置或跨中区域;长条形基坑可考虑采用抽条加固;基坑面积较大时,宜采用裙边加固;地铁车站的端头井一般采用格栅式加固;环境保护要求高,或为了封闭地下水时,可采用满堂加固。
12. 【答案】 D
【解析】此题考查了地下连续墙施工工艺流程。地下连续墙施工工艺:开挖导沟→修筑导墙→开挖沟槽(注入触变泥浆护壁)→清除槽底淤泥和残渣→吊放接头管.吊放钢筋笼→下导管灌注水下混凝士→拔出接头管。
13. 【答案】 D
【解析】本题考查的是水泥混凝土路面构造特点。在温度和湿度状况不良的环境下,水泥混凝土道路应设置垫层,以改善路面的使用性能。
(1)在季节性冰冻地区,道路结构设计总厚度小于最小防冻厚度要求时,根据路基干湿类型和路基填料的特点设置垫层,其差值即是垫层的厚度。水文地质条件不良的土质路堑,路基土湿度较大时,宜设置排水垫层。路基可能产生不均匀沉降或不均匀变形时,宜加设半刚性垫层。垫层的宽度应与路基宽度相同,其最小厚度为 150mm。
(3)防冻垫层和排水垫层宜采用砂、砂砾等颗粒材料。半刚性垫层宜采用低剂量水泥、石灰等无机结合稳定粒料或土类材料。
14. 【答案】 D
【解析】本题考查的是沥青材料的再生应用。再生沥青混合料中旧料含量:如直接用于路面面层,交通量较大,则旧料含量取低值,占 30%~40%; 交通量不大时用高值,旧料含量占50%~80%。
15. 【答案】 C
【解析】本题考查的是模板、支架和拱架的设计、制作、安装与拆除。模板、支架和拱架的设计中应设施工预拱度。施工预拱度应考虑下列因素: 1) 设计文件规定的结构预拱度; 2)支架和拱架承受全部施工荷载引起的弹性变形; 3)受载后由于杆件接头处的挤压和卸落设备压缩而产生的非弹性变形; 4)支架、拱架基础受载后的沉降。
16. 【答案】 C
【解析】本题考查的是管道功能性试验。
(1)分为预试验和主试验阶段;试验合格的判定依据分为允许压力降值和允许渗水量值,按设计要求确定。设计无要求时,应根据工程实际情况,选用其中一项或同时采用两项值作为试验合格的最终判定依据。
(2)水压试验进行实际渗水量测定时,宜采用注水法进行。
(3)管道采用两种(或两种以上)管材时,宜按不同管材分别进行试验;不具备分别试验的条件必须组合试验,且设计无具体要求时,应采用不同管材的管段中试验控制最严的标准进行试验。
(4)大口径球墨铸铁管、玻璃钢管、预应力钢筒混凝土管或预应力混凝土管等管道单口水压试验合格,且设计无要求时,可免去预试验阶段,而直接进行主试验阶段。
(5)管道的试验长度:
1)除设计有要求外,水压试验的管段长度不宜大于 1.0km。
2)对于无法分段试验的管道,应由工程有关方面根据工程具体情况确定。
(6)给水管道必须水压试验合格,并网运行前进行冲洗与消毒,经检验水质达标后,可允许并网通水投入运行。
17. 【答案】 B
【解析】本题考查的是给水排水管网维护与修复技术。局部修补主要用于管道内部的结构性破坏以及裂纹等的修复。目前,进行局部修补的方法很多,主要有密封法、补丁法、铰接管法、局部软衬法、灌浆法、 机器人法等。全断面修复包括:内衬法、缠绕法、喷涂法;管道更新包括:破管外挤、破管顶进。
18. 【答案】 D
【解析】本题考查的是给水与污水处理工艺流程。

19. 【答案】 C
【解析】本题考查的是施工图预算的应用。
1.施工图预算对建设单位的作用
(1)施工图预算是施工图设计阶段确定建设 I 程项目造价的依据,是设计文件的组成部分。
(2)施工图预算是建设单位在施工期间安排建设资金计划和使用建设资金的依据。
(3)施工图预算是招投标的重要基础,既是工程量清单的编制依据,也是标底编制的依据。
(4)施工图预算是拨付进度款及办理结算的依据
2.施工图预算对施工单位的作用
(1)施工图预算是确定投标报价的依据。
(2) 施工图预算是施工单位进行施工准备的依据,是施工单位在施工前组织材料、机具、设备及劳动力供应的重要参考,是施工单位编制进度计划、统计完成工作量、进行经济核算的参考依据。
(3)施工图预算是项目二次预算测算、控制项目成本及项目精细化管理的依据。
施工图预算的计价模式(1) 传统计价模式,又称为定额计价模式,是采用国家主管部门或地方统-规定的定额和取费标准进行工程计价来编制施工图预算的方法。市政公用工程多年一直使用定额计价模式,取费标准依据《全国统一市政工程预算定额》和地方统一的市政工程预算定额。一些大型企业还自行编制企业内部的施工定额,以提升企业的管理水准。
(2)工程量清单计价模式是指按照国家统一的工程量计算规则,工程数量采用综合单价的形式计算工程造价的方法。计价主要依据是市场价格和企业的定额水平,与传统计价模式相比,计价基础比较统一,在很大程度上给了企业自主报价的空间。
20. 【答案】 A
【解析】本题考查的是工程竣工验收要求。工程竣工报告:
(1)由施工单位编制,在工程完工后提交建设单位。
(2)在施工单位自行检查验收合格的基础上,申请竣工验收。
二、多项选择题
21. 【答案】 CDE
【解析】管道及设备安装前,土建施工单位、工艺安装单位及监理单位应对预埋吊点的数量及位置,设备基础位置、表面质量、几何尺寸、高程及混凝土质量,预留套管(孔洞)的位置、尺寸及高程等共同复核检查并办理书面交验手续。
22. 【答案】 AB
【解析】此题考查了燃气管道穿越构建筑物的规定。套管端部距路堤坡脚外距离不应小于2.0m;套管内径应比燃气管道外径大 100mm 以上;套管项部距铁路路肩不得小于 1.7m。
23. 【答案】 BE
【解析】城市快速路、主干路的沥青混合料面层严禁冬期施工。次干路及其以下道路在施工温度低于 5°C 时,应停止施工。粘层、透层、封层严禁冬期施工。
24. 【答案】 ADE
【解析】从风险的来源性质可分为政治风险、经济风险、技术风险、商务风险、公共关系风险和管理风险等。
25. 【答案】 BCD
【解析】装配式梁(板)施工依照吊装机具不同,梁板架设方法分为起重机架梁法、跨墩龙门吊架梁法、穿巷式架桥机架梁法。
26. 【答案】 ACD
【解析】箱涵项进工艺流程:现场调查→工程降水→工作坑开挖→后背制作→滑板制作→铺设润滑隔离层→箱涵制作..顶进设备安装→既有线加固→箱涵试顶进→吃土顶进→监控量测→箱体就位→拆除加固设施→拆除后背及项进设备→工作坑恢复。
27.【答案】ACE
【解析】本题涉及的考点为大体积混凝土浇筑施工质量检查与验收。大体积混凝土应选用水化热较低的水泥。要充分利用混凝土的中后期强度,尽可能降低水泥用量。控制好混凝土坍落度,不宜大于 180mm。
采取分层浇筑混凝土。大体积混凝土养护阶段的温度控制措施有: (1) 控制混凝土的中心温度与表面温度之间、混凝土表面温度与室外最低气温之间的差值小于 20°C。 (2) 采用内
部降温法来降低混凝土内外温差。内部降温法是在混凝土内部预埋水管,通入冷却水,降低混凝土内部最高温度。(3) 在结构外露的混凝土表面以及模板外侧覆盖保温材料(如草袋、锯木、湿砂等)。
28.【答案】DE
【解析】考查模板、支架和拱架拆除有关规定。①非承重侧模应在混凝土强度能保证结构棱角不损坏时方可拆除,混凝土强度宜为 2.5MPa 及以上。②芯模和预留孔道内模应在混凝土抗压强度能保证结构表面不发生塌陷和裂缝时,方可拔出。③预应力混凝土结构的侧模应在预应力张拉前拆除;底模应在结构建立预应力后拆除。
29.【答案】ABCD
【解析】本题考查的是钻孔灌注桩成孔方式与适用条件。钻孔灌注桩依据成桩方式可分为泥浆护壁成孔、干作业成孔、沉管成孔灌注桩及爆破成孔。
30.【答案】CDE
【解析】本题考查的是支撑结构类型。现浇钢筋混凝土支撑体系由围檩(圈梁)、对撑及角撑、立柱和其他附属构件组成。
三、案例分析题
【案例一】
【答案】
1.22x0.24x3000= 15840m
3 2.①防止或减轻由于唧泥导致的板底脱空和错台等病害;
②控制或减少路基不均匀冻胀或体积变形对混凝土面层产生的不利影响;
③为混凝土面层提供稳定而坚实的基础,并改善接缝的传荷能力。
3.中央分隔带
作用:①分隔车辆,避免车辆随意中途调头,消灭紊乱车流,减少交通事故。
②安全防撞击,夜间行车时能防眩。
③埋设管线等设施。
④美化路容,增加绿地面积。
4.置换土、抛石挤淤、砂垫层置换、反压护道、砂桩、粉喷桩、塑料排水板及土工织物等。
5.级配碎石施工应根据施工环境最低温度洒布防冻剂溶液,随洒布,随碾压。
【案例二】
【答案】
(1) 40mT 梁共 6x2x6=72 片;预制时间 72+4x10=180 天。
(2) A:沥青混凝土桥面铺装层; B:水泥混凝土整平层; C:横向湿接缝。
前提条件:整平层水泥混凝土强度达到设计强度的 80%以上。
(3) 错误一: T 梁直接支承在存放台座.上。改正: T 梁支点处应采用垫木和其他适宜的材料支承。
错误二:存放时间不超过 6 个月。改正:存放时间不宜超过 3 个月,特殊情况 下不应超过 5个月。
错误三:多层叠放时,上下层垫木错开。改正:上下层垫木应在同一条竖直线上。
(4)①②⑤③⑥⑧0⑨④⑦
(5)张拉设备和压力表的检定期限不得超过半年,且不得超过 200 次张拉作业。事件三中张拉设备已经使用了 300 次,应当重新鉴定后方可使用。
【案例三】
【答案】
1.(1)排水沟距离坡脚无距离。改正:应离开坡脚不小于 0.3m。
(2) 分两级放坡。改正:应在不同土质处分级放坡。
(3)坡度设置下陡上缓。改正:下级坡度缓,上级坡度陡。
2.A:护栏; B 集水井; h 最小为 0.5m。
3.应错开呈梅花状布置,间距不宜大于 3 ~ 4m。
4.防尘口罩、护目镜、施作之前开启降尘设备。
5.基坑回填应在综合管廊结构及防水工程验收合格后进行。
综合管廊两侧回填应对称、分层、均匀。管廊顶板上部 1000mm 范围内回填材料不得使用重型及振动压实机械碾压。
【案例四】
【答案】
1.分类:高压 B 管道;
作用:①构成大城市输配管网系统的外环网;
②大城市供气的主动脉;
③通过调压站将燃气送入中压管道、高压储气罐以及工艺需要高压燃气的大型工厂企业。
2.顶管法精度高、成本高;水平定向钻施工精度低、速度快,成本比顶管法低。背景资料中河道宽度仅为 50m,施工距离较短,适宜采用速度快、成本低的水平定向钻施工。
3.计量工程师的做法合理。计量支付的依据是工程合同,变更设计应履行程序,监理工程师应有书面指令。
4.携带和悬浮钻屑、稳定孔壁、降低回转扭矩、拉管阻力。
5.张某、王某和赵某三名外援均不满足直接.上岗操作条件。承担燃气钢质管道、设备焊接的人员,应持有《特种设备作业人员证》,且在证书 的有效期及合格范围内从事焊接工作。
间断焊接作业超过 6 个月,再次上岗前应复审抽考。年龄超过 55 岁的焊工,需要继续从事燃气钢质管道、设备焊接作业,根据情况由发证机关决定是否需要进行考试。
6.管道吹扫→强度试验→严密性试验。
【案例五】
【答案】
1、①竖井应设置防雨棚、挡水墙。
②竖井应设置安全护栏,护栏高度不应小于 1.2m。
③竖井周边应架设安全警示装置。
2、隧道拱顶埋深 8~10m,穿越地层为卵石,应采用渗入注浆法;
注浆顺序:由下而上、间隔对称进行;相邻孔位应错开、交叉进行。
3、A:钻孔; B:注浆。4、相向开挖的两个开挖面相距约 2 倍隧径时,应停止一个开挖面作业,进行封闭;由另一开挖面作贯通开挖。
5、(1) 地表道路路面变形(沉陷、开裂、隆起)引起交通安全;
(2)连续梁桥沉降、位移变形引起结构物变形安全;
(3)对桩基承载能力的影响。
6、钻孔顺序:先外圈、后内圈、跳孔施工。
施工记录应包括的内容:孔号、进尺、时间、地层、涌水位置、涌水量和涌水压力等。


